| 案例风格 | 现代简约风格 | 案例户型 | 跃层 | 案例面积 | 130㎡ |
|---|---|---|---|---|---|
| 楼盘名称 | 银城千花溪 | 设 计 师 | 郭志成 | 案例造价 | 定制家|全包19.68万 |
设计说明
设计户型:130㎡|3室2厅2卫
装修类型:新房装修
装修方式:全包装修
设计费服务费(元):9700
施工费(元):11.05万
主材、辅材的材料费总和(元):8.63万
费用总和(元):19.68万
主材品牌:欧神诺瓷砖、圣象地板、李洋木门、开来橱柜、奥普吊顶
开工日期:2021年04月06日
竣工日期:2021年08月06日
项目经理:郭才刚
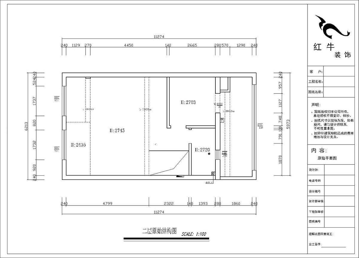
改造前建筑缺陷:
1、一层卫生间坐便器位置偏小,客厅沙发和电视距离将近6米距离有点远
2、二楼空间需要自己分割,卫生间位置比较尴尬需要改动
方案设计说明:
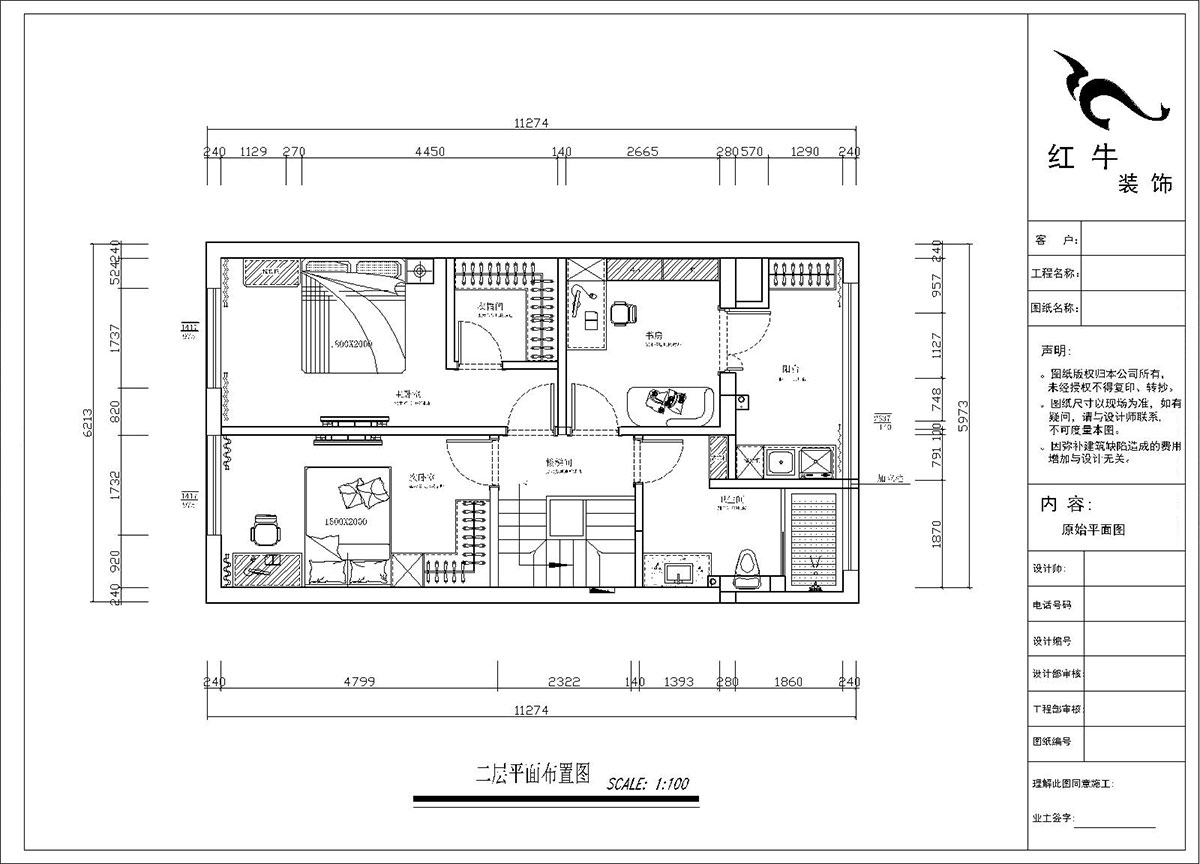
此案主要是给小两口的婚房,在舒适度上要求比较高,二楼结构上改动比较大,在设计时根据主人的个性要求去设计,卧室是整套房子中最私人也是最体现出温馨休闲感的空间,在设计时体现出静谧舒适的感觉;主卧与其他空间明显的区别,主卧的宽度保持在2.9米次卧的宽度在2.7米,主卧配有单独衣帽间。把二楼卫生间外扩到后面阳台赠送的空间,扩大原卫生间面积,增加卫生间采光和通风效果,区域划分明显,动静分离。吊顶简洁大气,配以轻现代家具,完美阐释了简约风格。整体现代简约风格的设计,高档的沙发,客厅在功能方面是会客休闲。








家装攻略
- 南京红牛装饰再添荣誉,荣获两面锦旗,双倍肯定,十分满意!
- 南京115㎡现代简约风装修,每一处都将“实用”和“颜值”完美兼容!
- 装修宝典:为何说企业文化是企业灵魂,是企业生存与发展的根本?
- 南京装修公司红牛装饰工地突击巡检:一厘一毫坚守品质,一心一意守护新家!
- 南京装修避坑指南:装修材料的选择,直接影响您入住新家的早晚?
- 南京比较靠谱的装修公司?南京红牛装饰装修宝典:新房装修好多久可以入住?关键在于……
- 工地巡检:双节同庆,品质同行,严把每一道工序,用心守护梦想家!
- 避坑指南:老房改造二手旧房翻新注意这几点,省心又省钱!
- 690亿元!2025最后一批“国补”资金已下达!还可叠加企补!至高可省40000元!
- 【9月再添荣誉】业主说红牛装饰设计牛!监工牛!预算牛!超满意!
- 九月秋意渐浓,南京红牛装饰工地巡检步履不停,只为兑现品质承诺!
- “金九银十”装修黄金期,南京电视台携手红牛装饰发福利啦~
- 金秋暖心礼|一面锦旗,一句好评,一份信赖!
- 差别真的太大了!南京红牛装饰标准化水电工艺vs非正规/熟人施工队的水电工艺!
- 金九银十装修季|南京红牛装饰工程总监:工地巡检无小事,严苛落实工艺标准!
- 避坑指南:装修行业门槛低,客户陷信任危机!工期延误、不断加钱?!
- 家装宝典:装修不再走弯路,直击高频率痛难点附避坑指南!
- 设计师工地巡检,用脚步丈量细节,护航效果完美落地!
- 2025最后一批装修“国补”要来了?!还可叠加额外优惠?这次能省多少?
- 避坑指南:盘点家装中几大高频痛难点!业主应该如何应对?


