| 案例风格 | 现代简约风格 | 案例户型 | 别墅 | 案例面积 | 233㎡ |
|---|---|---|---|---|---|
| 楼盘名称 | 仙林翠谷九曲花街 | 设 计 师 | 郭志成 | 案例造价 | 半包16.93万 |
设计说明
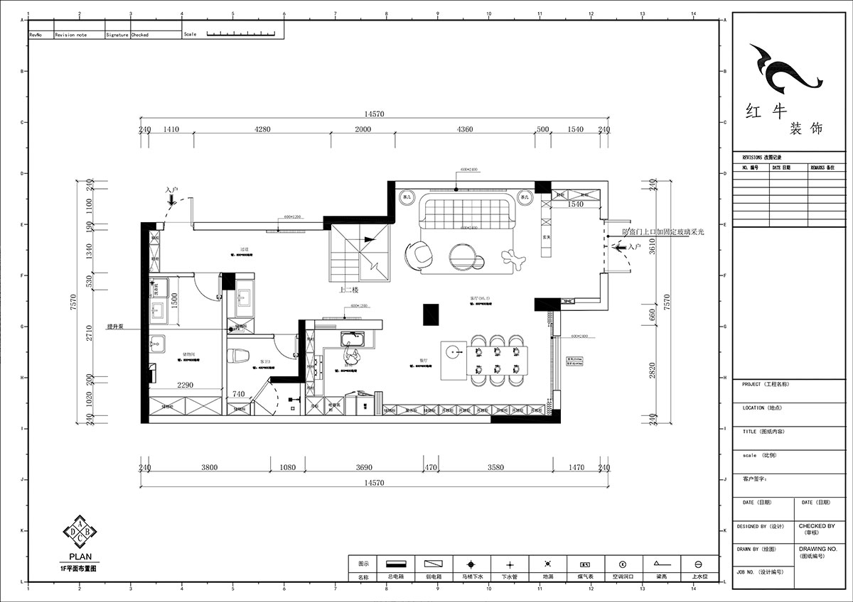
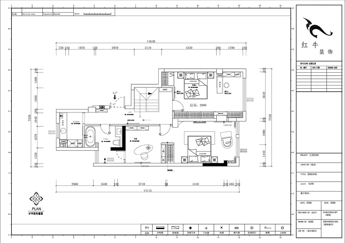
设计户型:233㎡|4室2厅3卫1厨
装修类型:毛坯装修
装修方式:半包装修
设计费服务费(元):1.8万
施工费(元):10.1万
辅材费(元):6.83万
费用总和(元):16.93万
开工日期:2026年03月11日
竣工日期:2026年10月11日
项目经理:郭才刚
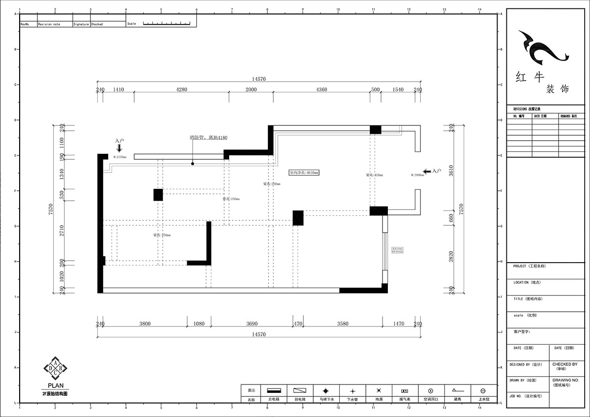
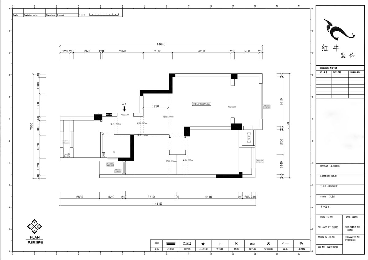
改造前建筑情况:
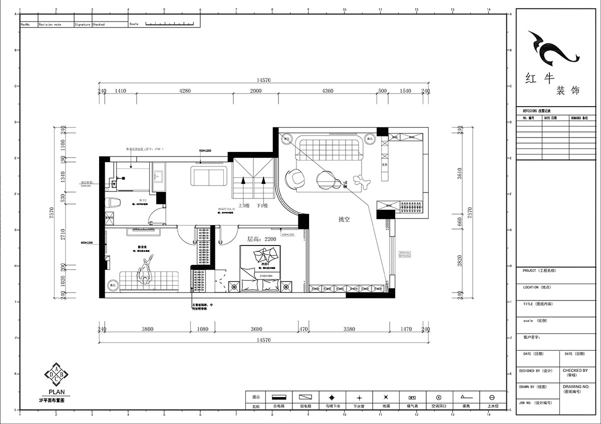
1、一楼挑空高度4.6米需要从新空间规划;
2、二楼需要后期自己浇筑出来再空间分布;
3、三楼空间做两个套房,需要从新规划。
方案设计说明:
本案设计为一套小别墅设计,是业主作为后期度假休闲的场所,平时不住这边,但装修完以后需要功能齐全。简洁大方,现代简约风格。
本户型是4室2厅3卫1厨的户型,业主要求一楼是来客的活动接待空间,需要一个超高气派的客餐厅空间;一楼配套设施厨房和卫生间的区域,便于后期生活的合理性。浇筑的二层作为客房区域需要一个卧室和影音室加卫生间的空间布局。三层主卧室把南北两个卧室打通,书房和卫生间的隔墙一并打通做个套间。三楼次卧和阳台打通做一个大的卧室加书房保持足够的宽敞空间能正常满足家庭需求,动态流线合理。喜欢简单,家里要看着清爽,在美观的前提下,储藏空间做得多点。
本案设计墙面用的是白色乳胶漆,让空间更加整洁干净,吊顶层高要高,灯光设计讲究空间的柔和,着重点光源的点缀,让家更加的明亮温馨。
1、确定整体风格现代简约风,通过色彩。材质和造型的搭配,营造出相应的空间氛围;
2、功能布局:充分考虑空间的使用需求进行合理的功能区分,比如客厅作为家庭活动和社交的核心区域,要营造出宽敞明亮的空间感;
3、卧室设计:以舒适和宁静为设计重点,床的位置选择靠窗近可以获得良好的采光,搭配柔软的床上用品,提供一个舒适的睡眠环境。






家装攻略
- 新春开门红:1888元装修红包限时派发,别再错过啦!
- 南京红牛装饰工程有限公司春节放假通知
- 锦旗荣誉:“设计专业,施工一流,一丝不苟,严格监督”
- 二手房装修旧房翻新太难了,想要装修不求人?建议收藏!
- 工地巡检:步履不停,以行动兑现品质承诺,严格把控每一环!
- 避坑指南:装修坑多、水深?归根结底五个字:信息不对称
- 工地巡检日:标准&品质是底线,专业&用心是态度!
- 好评如潮:晒一波热乎的客户评价,亲身体验过才最具有发言权!
- 最好的口碑,莫过于装修业主的真实评价!
- 南京红牛装饰:始终如一,以品质说话,以服务铸口碑!
- 再好的文案,都抵不过客户的真实反馈!“三个最”【内附完工实景】
- 工地突击巡检|严把每一处细节,用心守护每一份安心!
- 南京红牛装饰再添荣誉,荣获两面锦旗,双倍肯定,十分满意!
- 南京115㎡现代简约风装修,每一处都将“实用”和“颜值”完美兼容!
- 装修宝典:为何说企业文化是企业灵魂,是企业生存与发展的根本?
- 南京装修公司红牛装饰工地突击巡检:一厘一毫坚守品质,一心一意守护新家!
- 南京装修避坑指南:装修材料的选择,直接影响您入住新家的早晚?
- 南京比较靠谱的装修公司?南京红牛装饰装修宝典:新房装修好多久可以入住?关键在于……
- 工地巡检:双节同庆,品质同行,严把每一道工序,用心守护梦想家!
- 避坑指南:老房改造二手旧房翻新注意这几点,省心又省钱!


