| 案例风格 | 现代简约风格 | 案例户型 | 平层 | 案例面积 | 90㎡ |
|---|---|---|---|---|---|
| 楼盘名称 | 金浦御龙湾I区 | 设 计 师 | 郭志成 | 案例造价 | 定制家|全包11.46万 |
设计说明
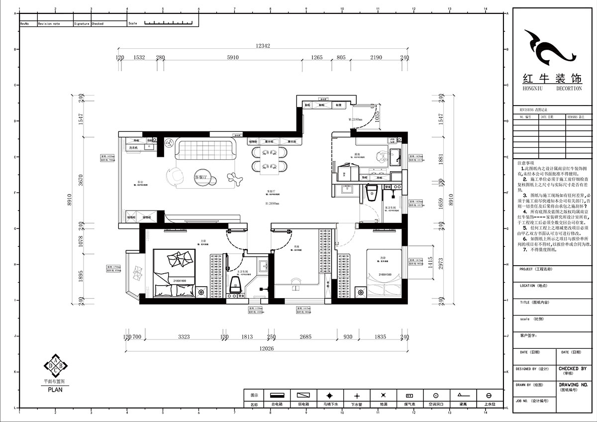
设计户型:90㎡|3室2厅2卫1厨1阳台
装修类型:毛坯装修
装修方式:全包装修
施工费(元):4.2万
主材、辅材的材料费总和(元):7.26万
费用总和(元):11.46万
主材品牌:L&D瓷砖、久扬地板、森尚木门、欧派橱柜、法恩莎卫浴、奥普吊顶
开工日期:2026年01月12日
竣工日期:2026年05月15日
项目经理:钱新平
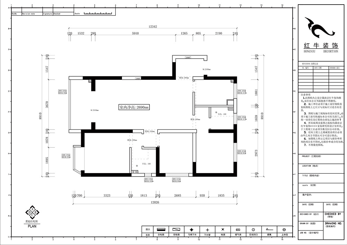
改造前建筑情况:
1、厨房空间较小有点压抑;
2、餐桌摆放的位置不好确定;
3、其他空间墙体不做调整,就按照原墙体结构来布置。
方案设计说明:
这套房子是作为老两口后面的养老房居住,整体风格定位为现代简约。
本户型是3室2厅2卫1厨的户型,业主要求厨房利用更合理点,视觉空间好出入方便,把厨房改成极简金属移门,扩大视觉效果;次卧室是夫人使用,有合理的收纳空间,满足后期使用方便;中间小卧室就作为家用书房来布置,储物收纳和书房功能并用。卫生间保持宽敞能正常满足家庭需求,动态流线合理。喜欢简单,家里要看着清爽,在美观的前提下,储藏空间做得多点。
本案设计墙面用的是白色乳胶漆,让空间更加整洁干净,吊顶层高要高,灯光设计讲究空间的柔和,着重点光源的点缀,让家更加明亮温馨。
1、确定整体风格现代简约风,通过色彩、材质和造型的搭配,营造出相应的空间氛围;
2、功能布局:充分考虑空间的使用需求进行合理的功能区分,比如(客厅作为家庭活动和社交的核心区域,要营造出宽敞明亮的空间感;
3、卧室设计:以舒适和宁静为设计重点,床的位置选择靠窗近可以获得良好的采光,搭配柔软的床上用品,提供一个舒适的睡眠环境。



家装攻略
- 新春开门红:1888元装修红包限时派发,别再错过啦!
- 南京红牛装饰工程有限公司春节放假通知
- 锦旗荣誉:“设计专业,施工一流,一丝不苟,严格监督”
- 二手房装修旧房翻新太难了,想要装修不求人?建议收藏!
- 工地巡检:步履不停,以行动兑现品质承诺,严格把控每一环!
- 避坑指南:装修坑多、水深?归根结底五个字:信息不对称
- 工地巡检日:标准&品质是底线,专业&用心是态度!
- 好评如潮:晒一波热乎的客户评价,亲身体验过才最具有发言权!
- 最好的口碑,莫过于装修业主的真实评价!
- 南京红牛装饰:始终如一,以品质说话,以服务铸口碑!
- 再好的文案,都抵不过客户的真实反馈!“三个最”【内附完工实景】
- 工地突击巡检|严把每一处细节,用心守护每一份安心!
- 南京红牛装饰再添荣誉,荣获两面锦旗,双倍肯定,十分满意!
- 南京115㎡现代简约风装修,每一处都将“实用”和“颜值”完美兼容!
- 装修宝典:为何说企业文化是企业灵魂,是企业生存与发展的根本?
- 南京装修公司红牛装饰工地突击巡检:一厘一毫坚守品质,一心一意守护新家!
- 南京装修避坑指南:装修材料的选择,直接影响您入住新家的早晚?
- 南京比较靠谱的装修公司?南京红牛装饰装修宝典:新房装修好多久可以入住?关键在于……
- 工地巡检:双节同庆,品质同行,严把每一道工序,用心守护梦想家!
- 避坑指南:老房改造二手旧房翻新注意这几点,省心又省钱!


