| 案例风格 | 现代简约风格 | 案例户型 | 平层 | 案例面积 | 88㎡ |
|---|---|---|---|---|---|
| 楼盘名称 | 锦绣公馆 | 设 计 师 | 蒋琛 | 案例造价 | 定制家|全包12万 |
设计说明
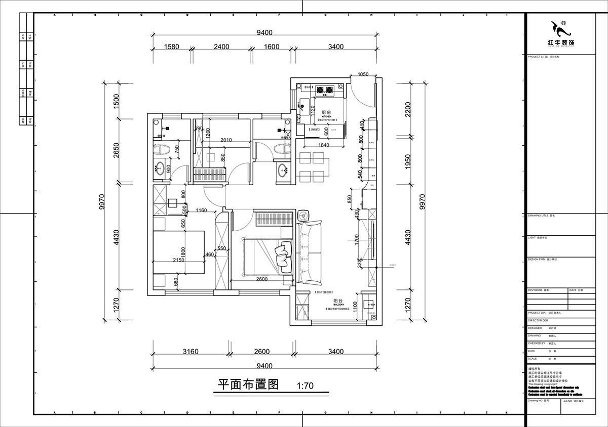
设计户型:88㎡|3室2厅2卫1厨1阳台
装修类型:新房装修
装修方式:全包装修
设计费服务费(元):3000
施工费(元):6万
主材、辅材的材料费总和(元):6万
费用总和(元):12万
主材品牌:L&D瓷砖、圣象地板、森尚木门、开来橱柜、法恩莎洁具、奥普吊顶
开工日期:2026年03月05日
竣工日期:2026年08月10日
项目经理:蒋振玉
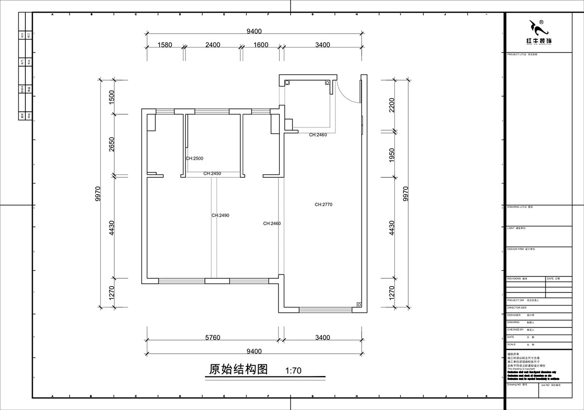
改造前建筑情况:
此房为住宅式公寓,大通间,要通过客户需求进行房子分隔,三房两卫,规规整整,增加一些收纳,餐边柜的设计,干湿区能满足家庭需求。
方案设计说明:
家居的设计,不仅仅要注重实用功能上的完善,更需要满足主人对高品质生活质量的需求,包括家装风格的视觉享受,与主人身份爱好等相称贴和,才能使居者与之产生共鸣,于是设计就展开了……
现代简约风格去除了原有的繁琐、复杂的设计元素,采用留白的设计来营造出空间中的个性与宁静,对于每个室内设计设计师而言,把握好整体房间的空间感和选择营造居室居住环境,其难度比一般意义上的设计更加困难,所以,这就是简约却又不简单的现代简约设计的装饰要素。




家装攻略
- 新春开门红:1888元装修红包限时派发,别再错过啦!
- 南京红牛装饰工程有限公司春节放假通知
- 锦旗荣誉:“设计专业,施工一流,一丝不苟,严格监督”
- 二手房装修旧房翻新太难了,想要装修不求人?建议收藏!
- 工地巡检:步履不停,以行动兑现品质承诺,严格把控每一环!
- 避坑指南:装修坑多、水深?归根结底五个字:信息不对称
- 工地巡检日:标准&品质是底线,专业&用心是态度!
- 好评如潮:晒一波热乎的客户评价,亲身体验过才最具有发言权!
- 最好的口碑,莫过于装修业主的真实评价!
- 南京红牛装饰:始终如一,以品质说话,以服务铸口碑!
- 再好的文案,都抵不过客户的真实反馈!“三个最”【内附完工实景】
- 工地突击巡检|严把每一处细节,用心守护每一份安心!
- 南京红牛装饰再添荣誉,荣获两面锦旗,双倍肯定,十分满意!
- 南京115㎡现代简约风装修,每一处都将“实用”和“颜值”完美兼容!
- 装修宝典:为何说企业文化是企业灵魂,是企业生存与发展的根本?
- 南京装修公司红牛装饰工地突击巡检:一厘一毫坚守品质,一心一意守护新家!
- 南京装修避坑指南:装修材料的选择,直接影响您入住新家的早晚?
- 南京比较靠谱的装修公司?南京红牛装饰装修宝典:新房装修好多久可以入住?关键在于……
- 工地巡检:双节同庆,品质同行,严把每一道工序,用心守护梦想家!
- 避坑指南:老房改造二手旧房翻新注意这几点,省心又省钱!


