| 案例风格 | 中古风 | 案例户型 | 跃层 | 案例面积 | 72㎡+40㎡阁楼 |
|---|---|---|---|---|---|
| 楼盘名称 | 奥体新城翠杉园 | 设 计 师 | 蒋琛 | 案例造价 | 定制家|全包12万 |
设计说明
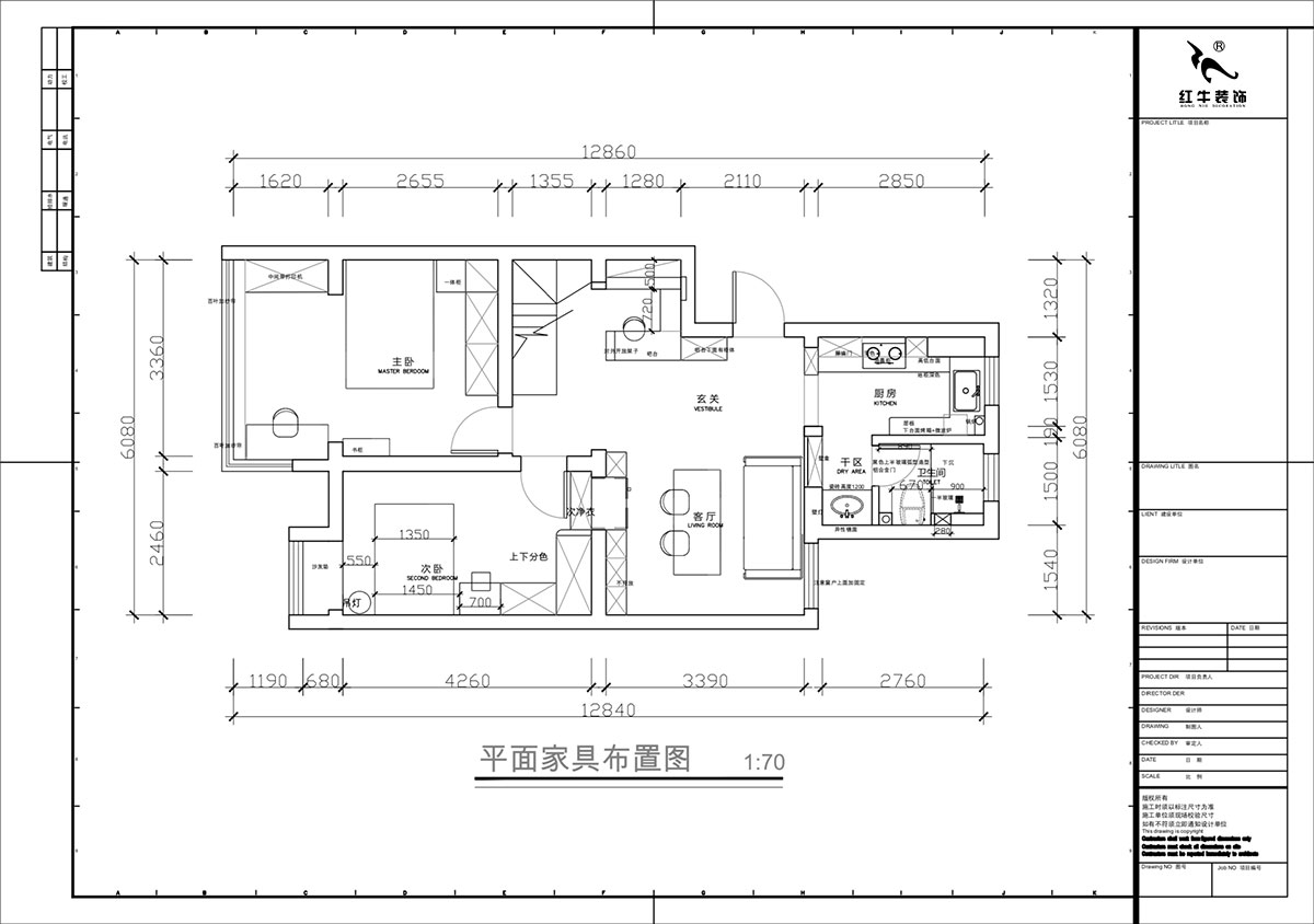
设计户型:复式|(72+40)㎡|2室1厅1卫+阁楼
装修类型:老房装修
装修方式:全包装修
设计费服务费(元):7000
施工费(元):6万
主材、辅材的材料费总和(元):6万
费用总和(元):12万
主材品牌:L&D瓷砖、森尚木门、欧派橱柜、法恩莎卫浴、奥普吊顶
开工日期:2025年10月30日
竣工日期:2026年03月20日
项目经理:成东
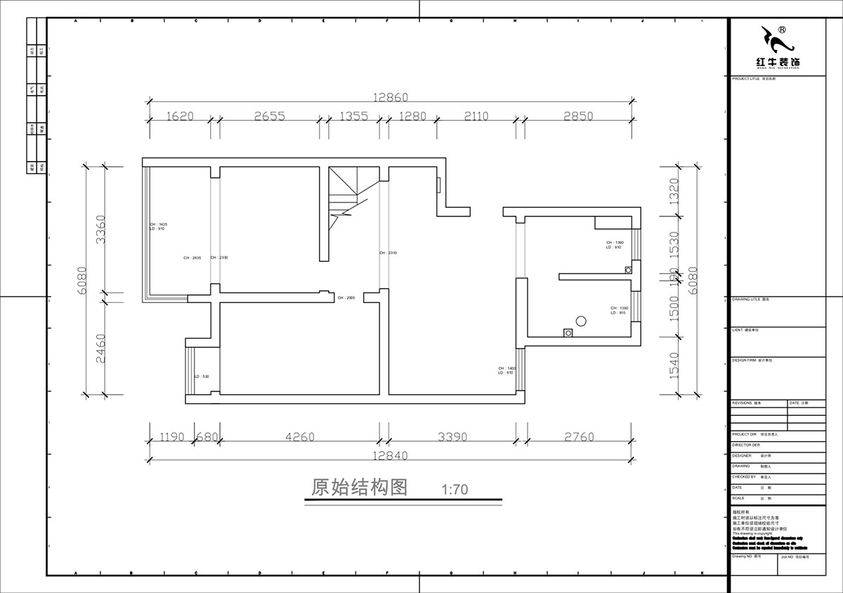
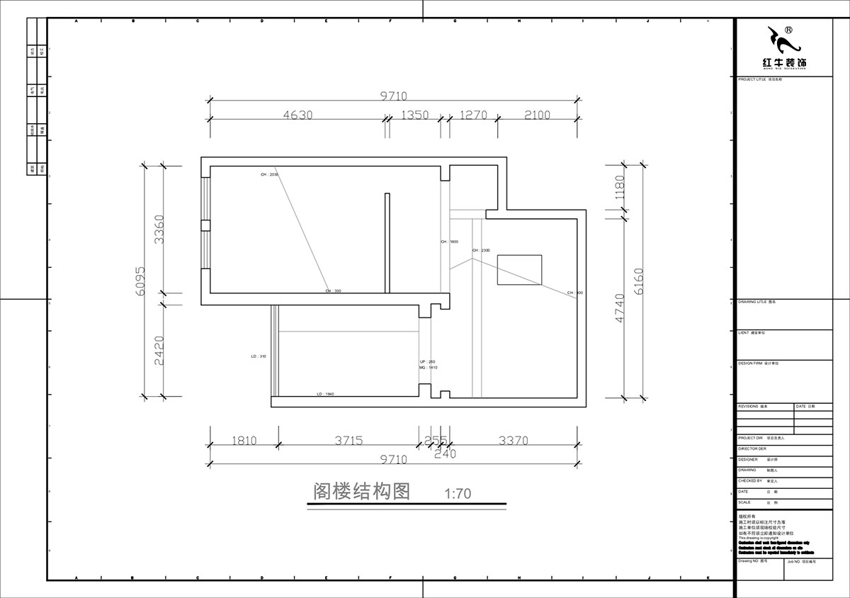
改造前建筑情况:
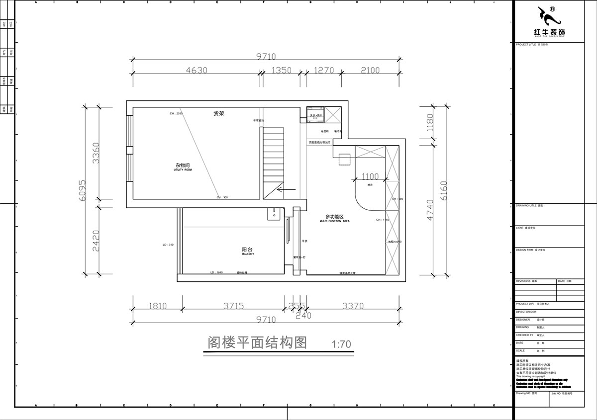
主要解决的是收纳的功能,做了去客厅化的设计,在楼梯拐角做了一个吧台区,两个区域来分解餐厅的功能,同时又增加了家庭氛围。房间还是以实用和增加收纳功能为主。
方案设计说明:
美式复古之美,在于它的沉稳与大气。经典的线条,厚重的材质,营造出一种高贵的氛围。在这里,生活变得有仪式感,每一刻都值得珍藏
当现代与复古相遇,美式复古风格展现出独特的魅力。它既有着历史的沉淀,又不失时尚的气息。色彩的搭配,家具的选择,都彰显着主人的品味与个性。
走进美式复古的家,就像走进了一幅油画。温暖的色调,精致的装饰,让人感受到生活的美好。在这里,你可以放下疲惫,享受宁静与舒适。






家装攻略
- 南京红牛装饰:始终如一,以品质说话,以服务铸口碑!
- 再好的文案,都抵不过客户的真实反馈!“三个最”【内附完工实景】
- 工地突击巡检|严把每一处细节,用心守护每一份安心!
- 南京红牛装饰再添荣誉,荣获两面锦旗,双倍肯定,十分满意!
- 南京115㎡现代简约风装修,每一处都将“实用”和“颜值”完美兼容!
- 装修宝典:为何说企业文化是企业灵魂,是企业生存与发展的根本?
- 南京装修公司红牛装饰工地突击巡检:一厘一毫坚守品质,一心一意守护新家!
- 南京装修避坑指南:装修材料的选择,直接影响您入住新家的早晚?
- 南京比较靠谱的装修公司?南京红牛装饰装修宝典:新房装修好多久可以入住?关键在于……
- 工地巡检:双节同庆,品质同行,严把每一道工序,用心守护梦想家!
- 避坑指南:老房改造二手旧房翻新注意这几点,省心又省钱!
- 690亿元!2025最后一批“国补”资金已下达!还可叠加企补!至高可省40000元!
- 【9月再添荣誉】业主说红牛装饰设计牛!监工牛!预算牛!超满意!
- 九月秋意渐浓,南京红牛装饰工地巡检步履不停,只为兑现品质承诺!
- “金九银十”装修黄金期,南京电视台携手红牛装饰发福利啦~
- 金秋暖心礼|一面锦旗,一句好评,一份信赖!
- 差别真的太大了!南京红牛装饰标准化水电工艺vs非正规/熟人施工队的水电工艺!
- 金九银十装修季|南京红牛装饰工程总监:工地巡检无小事,严苛落实工艺标准!
- 避坑指南:装修行业门槛低,客户陷信任危机!工期延误、不断加钱?!
- 家装宝典:装修不再走弯路,直击高频率痛难点附避坑指南!


