| 案例风格 | 现代简约风格 | 案例户型 | 平层 | 案例面积 | 68㎡ |
|---|---|---|---|---|---|
| 楼盘名称 | 成贤街92号院 | 设 计 师 | 蒋琛 | 案例造价 | 定制家|全包10万 |
南京现代简约装修设计说明
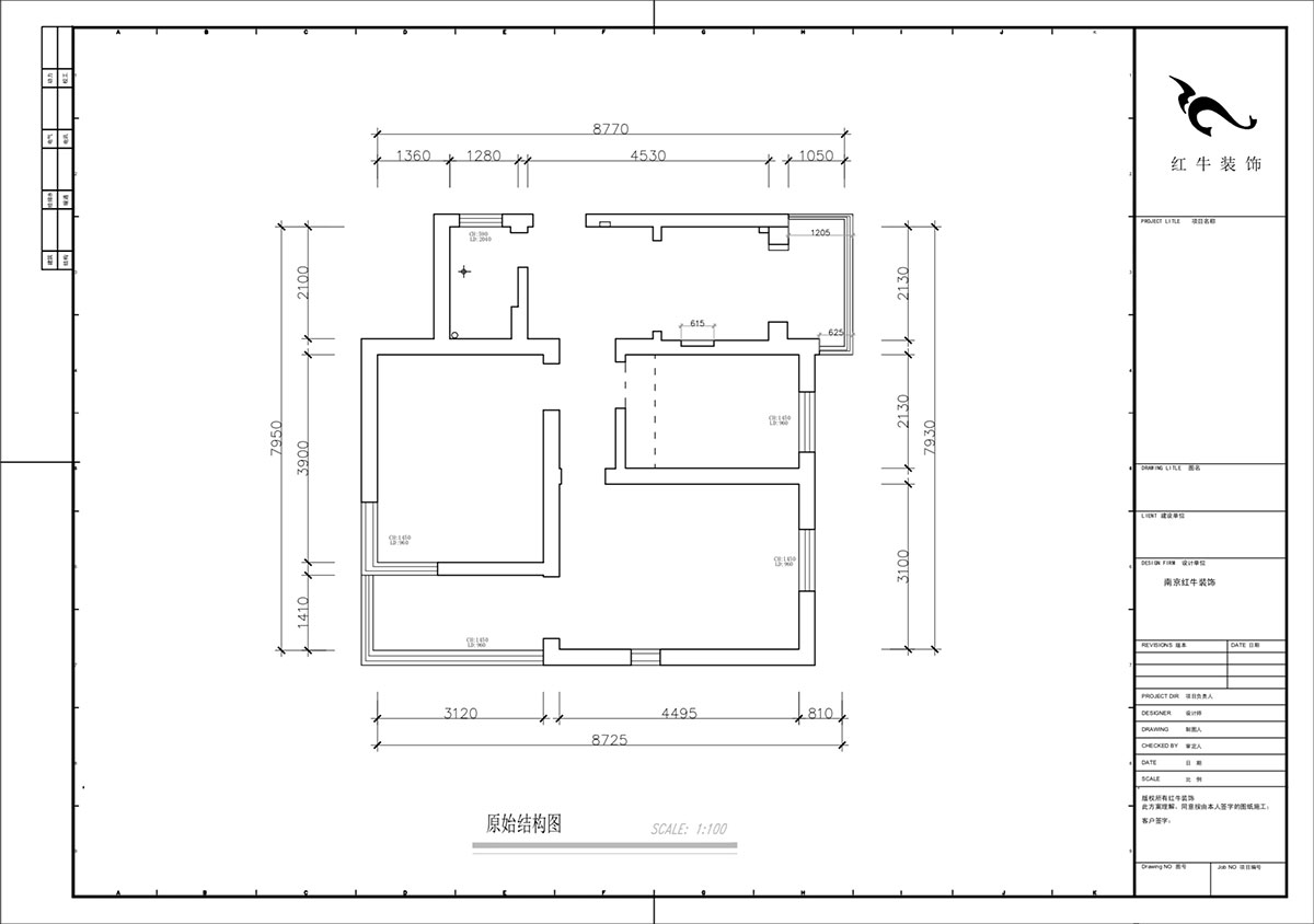
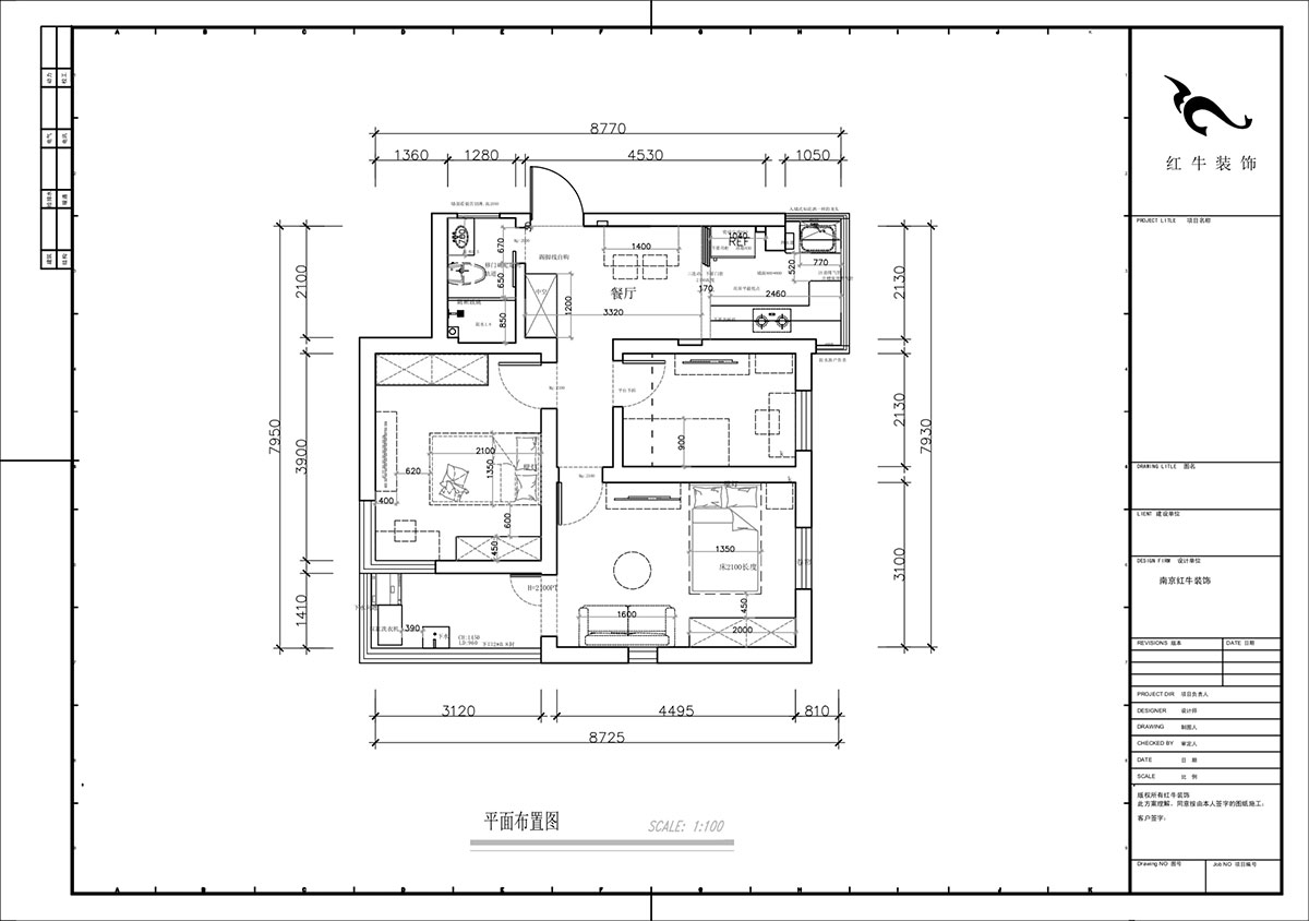
设计户型:68㎡|3室1厅1卫
装修类型:老房装修
装修方式:全包装修
设计费服务费(元):5000
施工费(元):5万
主材、辅材的材料费总和(元):5万
费用总和(元):10万
主材品牌:L&D瓷砖、圣象地板、森尚木门、开来橱柜、法恩莎洁具、奥普吊顶
开工日期:2025年09月15日
竣工日期:2026年01月17日
项目经理:张瑞敏
方案设计说明:
户型方正,功能细化,空间最大化利用。




家装攻略
- 二手房装修旧房翻新太难了,想要装修不求人?建议收藏!
- 工地巡检:步履不停,以行动兑现品质承诺,严格把控每一环!
- 避坑指南:装修坑多、水深?归根结底五个字:信息不对称
- 工地巡检日:标准&品质是底线,专业&用心是态度!
- 好评如潮:晒一波热乎的客户评价,亲身体验过才最具有发言权!
- 最好的口碑,莫过于装修业主的真实评价!
- 南京红牛装饰:始终如一,以品质说话,以服务铸口碑!
- 再好的文案,都抵不过客户的真实反馈!“三个最”【内附完工实景】
- 工地突击巡检|严把每一处细节,用心守护每一份安心!
- 南京红牛装饰再添荣誉,荣获两面锦旗,双倍肯定,十分满意!
- 南京115㎡现代简约风装修,每一处都将“实用”和“颜值”完美兼容!
- 装修宝典:为何说企业文化是企业灵魂,是企业生存与发展的根本?
- 南京装修公司红牛装饰工地突击巡检:一厘一毫坚守品质,一心一意守护新家!
- 南京装修避坑指南:装修材料的选择,直接影响您入住新家的早晚?
- 南京比较靠谱的装修公司?南京红牛装饰装修宝典:新房装修好多久可以入住?关键在于……
- 工地巡检:双节同庆,品质同行,严把每一道工序,用心守护梦想家!
- 避坑指南:老房改造二手旧房翻新注意这几点,省心又省钱!
- 690亿元!2025最后一批“国补”资金已下达!还可叠加企补!至高可省40000元!
- 【9月再添荣誉】业主说红牛装饰设计牛!监工牛!预算牛!超满意!
- 九月秋意渐浓,南京红牛装饰工地巡检步履不停,只为兑现品质承诺!


