| 案例风格 | 法式风格 | 案例户型 | 别墅 | 案例面积 | 260㎡ |
|---|---|---|---|---|---|
| 楼盘名称 | 城开家园 | 设 计 师 | 蒋琛 | 案例造价 | 定制家|全包38万 |
设计说明
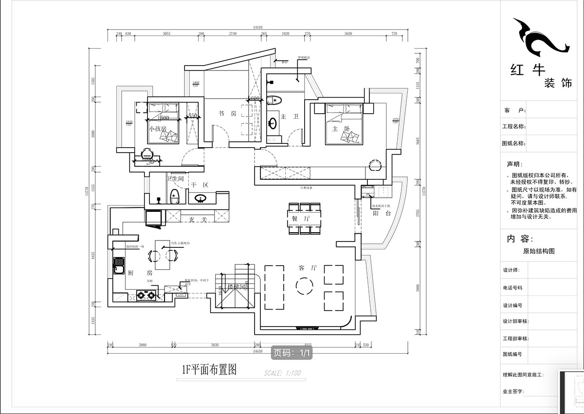
设计户型:260㎡|5室4厅3卫
装修类型:老房装修
装修方式:全包装修
设计费服务费(元):1.5万
施工费(元):18万
主材、辅材的材料费总和(元):20万
费用总和(元):38万
主材品牌:L&D瓷砖、圣象地板、戴胜木门、开来橱柜、法恩莎洁具、奥普吊顶
开工日期:2022年03月04日
竣工日期:2022年08月10日
项目经理:钱新平
改造前建筑缺陷:
房屋就是吧客餐厅打造的比较舒适,舍弃了一楼原来的卧室,改成了餐厅,原餐厅的地方就打造出一个大的门厅和开放式厨房,整个楼梯重新规划走向,打造一个现代感极强的浪漫主义的风格,其他空间都是小的改动,根据客户需求做了最大化利用。
方案设计说明:
整个家装浪漫温馨,一场梦想与现实的交织,形成梦幻的家居空间,感受浪漫、唯美、高雅的气质。现代法式轻奢低调奢华,大气高雅,高档品质的家居装饰,表现出女主人追求高品质生活。
在色系的运用上,大部的色调以浅色作为主色调,稍微用亮色进行点缀。从视觉的角度上来说,浅色与深色相比,是一种较为舒适、柔和的色调,再加上少许的亮色点缀,会使整个空间既有和谐统一的感觉,又突出了视觉层次感,给空间增添许多生气和温度。




家装攻略
- 二手房装修旧房翻新太难了,想要装修不求人?建议收藏!
- 工地巡检:步履不停,以行动兑现品质承诺,严格把控每一环!
- 避坑指南:装修坑多、水深?归根结底五个字:信息不对称
- 工地巡检日:标准&品质是底线,专业&用心是态度!
- 好评如潮:晒一波热乎的客户评价,亲身体验过才最具有发言权!
- 最好的口碑,莫过于装修业主的真实评价!
- 南京红牛装饰:始终如一,以品质说话,以服务铸口碑!
- 再好的文案,都抵不过客户的真实反馈!“三个最”【内附完工实景】
- 工地突击巡检|严把每一处细节,用心守护每一份安心!
- 南京红牛装饰再添荣誉,荣获两面锦旗,双倍肯定,十分满意!
- 南京115㎡现代简约风装修,每一处都将“实用”和“颜值”完美兼容!
- 装修宝典:为何说企业文化是企业灵魂,是企业生存与发展的根本?
- 南京装修公司红牛装饰工地突击巡检:一厘一毫坚守品质,一心一意守护新家!
- 南京装修避坑指南:装修材料的选择,直接影响您入住新家的早晚?
- 南京比较靠谱的装修公司?南京红牛装饰装修宝典:新房装修好多久可以入住?关键在于……
- 工地巡检:双节同庆,品质同行,严把每一道工序,用心守护梦想家!
- 避坑指南:老房改造二手旧房翻新注意这几点,省心又省钱!
- 690亿元!2025最后一批“国补”资金已下达!还可叠加企补!至高可省40000元!
- 【9月再添荣誉】业主说红牛装饰设计牛!监工牛!预算牛!超满意!
- 九月秋意渐浓,南京红牛装饰工地巡检步履不停,只为兑现品质承诺!


