| 案例风格 | 中式风格 | 案例户型 | 别墅 | 案例面积 | 190㎡ |
|---|---|---|---|---|---|
| 楼盘名称 | 奥斯博恩庄园御景轩 | 设 计 师 | 郭志成 | 案例造价 | 定制家|24万 |
设计理念
第一次跟业主接触是夫妻下午到公司来咨询;夫妻两个年龄在40岁左右,男主人给人第一印象休闲怡情,女主人温柔娴淑但也很豪爽;业主提出这套房子要做改善型住房,装修有靓点和特色,家具是中式的实木家具;所以给他们定位现代中式风格~现代中式是民族传统文化与现代时尚元素在时间长河里的邂逅,以内敛沉稳的传统文化为出发点,使用古典色彩融入现代艺术设计效果,让家有一种温馨优雅之气,还平添出一种传统浓郁的文化氛围。
本案设计中
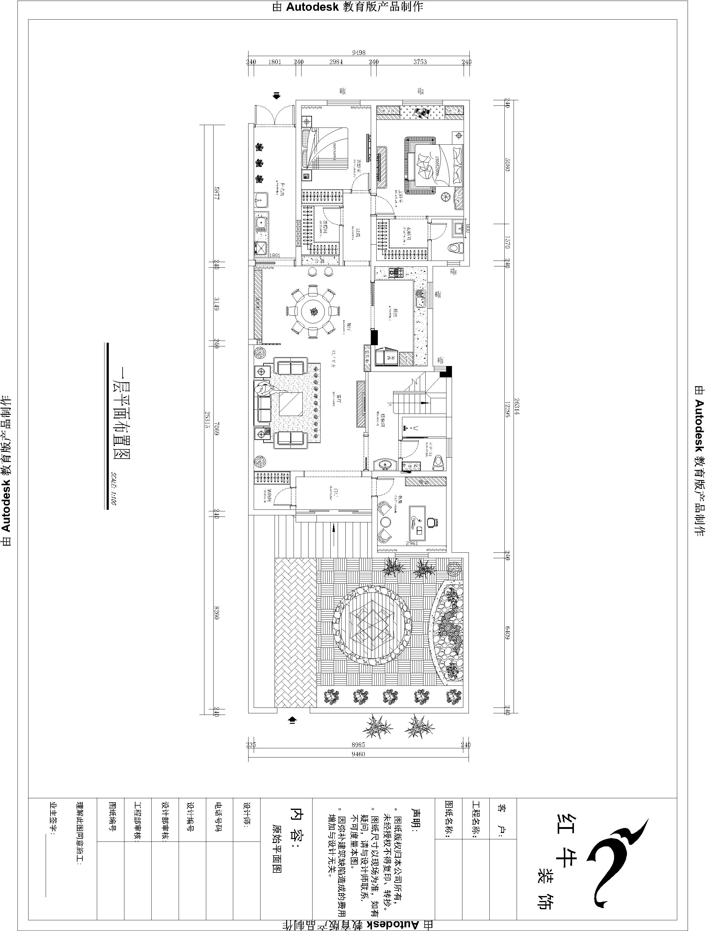
1、把一层中间玻璃窗户改成入户进门位置,这样改变增大了客餐厅空间,改善了房屋南北通风达到空气流通的效果;把原来卫生间和楼梯位置互换,楼梯间位置隐藏在电视背景墙后面满足业主一个小小的要求;客卫生间变成干湿分离,让客卫生间有足够的面积来满足主人的需求;餐厅位置设计了一个小吧台用来给业主人少的时候就餐使用,吧台后面预留了一个储藏间位置,让业主有足够大的储藏空间随时摆放各种物件的收纳。
2、把二层原卫生间位置和楼梯位置互换,缩小卫生间空间来弥补女儿房间空间的设计需求,爱美是女孩的天性,小美女一直向往个飘窗和单独的化妆区域。把靠窗户位置设计一个装饰飘窗和化妆一体的多功能柜来满足女儿房的需求。
3、本案的设计完善了业主对房屋各种的空间需要。线条流畅的钛合金,爵士白大理石的电视背景墙和沙发的整体山水画工艺墙纸,都寄承于源远流长的东方文化,端庄·含蓄,使得生活意境之美更加(走心)。结果出来还好未违初心,甚合业主之心。




南京奥斯博恩庄园190平米现代中式风格装修 | 古典美学融入现代设计
现代中式是民族传统文化与现代时尚元素在时间长河里的邂逅,以内敛沉稳的传统文化为出发点,使用古典色彩融入现代艺术设计效果,让家有一种温馨优雅之气,还平添出一种传统浓郁的文化氛围。
设计师是这样介绍的:第一次跟业主接触是夫妻下午到公司来咨询,夫妻两个年龄在40岁左右,男主人给人第一印象休闲怡情,女主人温柔娴淑但也很豪爽。业主提出这套房子要做改善型住房,装修要有亮点和特色,家具是中式的实木家具,所以给他们定位为现代中式风格。
■楼盘名称:奥斯博恩庄园
■设计风格:现代中式风格
■建筑面积:190㎡
■店面地址:南京市秦淮区龙蟠中路458-3号
■服务热线:025-52228153


客厅整体陈设布局端庄、平稳,蕴含古典气质。
线条流畅的钛合金,爵士白大理石的电视背景墙和沙发的整体山水画工艺墙纸,都继承于源远流长的东方文化,端庄含蓄,尽显生活意境之美。
四方的实木茶几非常具有质感,能很好地彰显生活品质。
几案上摆设的陶瓷、花瓶等器物,起到了“画龙点睛”的作用,营造出东方特有的禅意。
沙发在传统中式的基础之上,去除繁琐的造型和雕刻,塑造出简约大气的轻奢品质。
地毯的图案是云纹,作为古代中国传统的吉祥图案,象征高升和如意,应用于客厅非常适合。

吊顶形如满月,暗含“天圆地方”、“天人合一”的哲学理念。餐桌也是圆形,大家围桌而坐,包容与凝聚力由此而生。
餐边柜是整个餐厅中除去餐桌最容易提升空间美感的软装之一,摆放一些装饰品和几瓶酒,给餐厅增添了不少光彩。
餐厅位置设计了一个小吧台用于人少时就餐使用,吧台后面预留了一个储藏间位置,让业主有足够大的储藏空间随时收纳各种物品。

可以看出,厨房的面积很大,深沉的红色板材将厨房营造地分外沉稳低调,地面铺上大块的菱形地砖,简单却大气。
吊柜到顶式设计扩大储物空间,大小不一的柜体满足了多种不同的收纳需求,美观与实用并存。
家电内嵌,极大的释放了厨房空间,烹饪区和清洗区划分合理,空间开发利用完美。
厨具挂到墙壁上大大节省了空间,使台面看起来也更加清爽。

背景墙的墙纸极具中式韵味,自然与优雅和谐并存。
窗边对称摆放了两个装饰柜,无论是它自身还是里面的东西都是极佳的装饰品。
床边书桌上的烛台装饰物,既有中式风格的传统韵味,又有现代的简洁、前卫,带来不一样的氛围和心情。
新中式风格的吊灯以安静优雅的姿态出现,沉稳的造型传递出温馨时尚的风格。
窗边被设计成休闲的阅读区,融入了现代家居设计元素,让整个卧室更加明快。

这间是女儿房,女孩一直向往飘窗和单独的化妆区域,所以在靠窗位置设计一个装饰飘窗和化妆一体的多功能柜。
化妆柜上安装了一款椭圆形的挂墙式化妆台,简单的搭配却有着温馨的效果,还配备了吊灯进行补光。
纵观整个屋子,墙面都贴上了浅色的花纹壁纸,再搭配上小碎花的窗帘,显得清新浪漫,轻松优雅。
此外,在一些细节上面也很到位,比如床头柜上金属麋鹿摆件,是童话中的动物,非常梦幻,台灯的造型与色彩也十分温柔,显示出这是一个女孩的房间。

大面积的蓝色赋予了整体空间庄重与优雅,色彩浓厚而成熟,增加了空间的温暖感与稳重感,体现中式文化深沉、厚重的底蕴。
门板上的回字纹简约婉转,它已经不再是一个单纯的造型艺术,更上升为一种文化符号,包含东方气韵。
而“梅花”凌寒独自开,一身傲骨、风霜高洁,自古以来便受到文人雅士的偏爱,搭配上青色的背景色,散发出淡雅清秀的君子之意。

用实木柜进行装饰,更能展示中式家居的风格,彰显主人的高雅品位,相比其他风格的浴室柜,它少了几分夺目多了几分温和,少了一些繁华多了一些古朴雅致。
马桶以上到顶,铺了小块黑砖,它营造出的空间感,视觉上比大片瓷砖更加丰富,黑与白也是经典的搭配。再挂上一副装饰画,厕所都显得充满艺术感。


家装攻略
- 二手房装修旧房翻新太难了,想要装修不求人?建议收藏!
- 工地巡检:步履不停,以行动兑现品质承诺,严格把控每一环!
- 避坑指南:装修坑多、水深?归根结底五个字:信息不对称
- 工地巡检日:标准&品质是底线,专业&用心是态度!
- 好评如潮:晒一波热乎的客户评价,亲身体验过才最具有发言权!
- 最好的口碑,莫过于装修业主的真实评价!
- 南京红牛装饰:始终如一,以品质说话,以服务铸口碑!
- 再好的文案,都抵不过客户的真实反馈!“三个最”【内附完工实景】
- 工地突击巡检|严把每一处细节,用心守护每一份安心!
- 南京红牛装饰再添荣誉,荣获两面锦旗,双倍肯定,十分满意!
- 南京115㎡现代简约风装修,每一处都将“实用”和“颜值”完美兼容!
- 装修宝典:为何说企业文化是企业灵魂,是企业生存与发展的根本?
- 南京装修公司红牛装饰工地突击巡检:一厘一毫坚守品质,一心一意守护新家!
- 南京装修避坑指南:装修材料的选择,直接影响您入住新家的早晚?
- 南京比较靠谱的装修公司?南京红牛装饰装修宝典:新房装修好多久可以入住?关键在于……
- 工地巡检:双节同庆,品质同行,严把每一道工序,用心守护梦想家!
- 避坑指南:老房改造二手旧房翻新注意这几点,省心又省钱!
- 690亿元!2025最后一批“国补”资金已下达!还可叠加企补!至高可省40000元!
- 【9月再添荣誉】业主说红牛装饰设计牛!监工牛!预算牛!超满意!
- 九月秋意渐浓,南京红牛装饰工地巡检步履不停,只为兑现品质承诺!


