| 案例风格 | 现代简约风格 | 案例户型 | 平层 | 案例面积 | 150㎡ |
|---|---|---|---|---|---|
| 楼盘名称 | 大光路37号 | 设 计 师 | 刘晓芳 | 案例造价 | 定制家|全包19.6万 |
设计说明
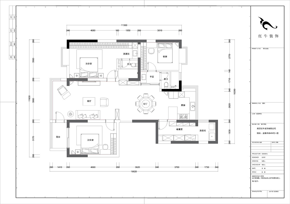
设计户型:150㎡|3室2厅2卫
装修类型:老房重装
装修方式:全包装修
设计费服务费(元):1.2万
施工费(元):9万
主材、辅材的材料费总和(元):10.6万
费用总和(元):19.6万
主材品牌:欧神诺瓷砖、李洋木门、开来橱柜、法恩莎洁具、奥普吊顶
开工日期:2021年12月12日
竣工日期:2022年05月30日
项目经理:张瑞敏
改造前建筑缺陷:
户型整体比较规整,南北通透,缺点是家里缺少储藏空间,另外入户大门正对主卧门,餐厅空间比较窄。
方案设计说明:
根据和客户沟通,客户喜欢现代风格里面带有一些中式文化的元素,但是整体造型还是希望是现代风格,结构上要求两个卫生间都是干湿分开,餐厅希望是圆桌。设计在结构上做了很大的调整改变,客卫生间的墙体进行了调整,干区的位置也进行了变化,这样餐厅空间边宽了几十公分,另外客房的门洞进行偏移,同时也增加了客房的储物空间,主卫生间整体进行了偏移,主卧修改门洞的位置,这样进门错开了正对房门,也错开了正对主卫生间门口的缺点。另外主卧室做一整面墙的柜子,增大了储物空间。解决了风水问题,整体色调上淡蓝灰色,家里的家具是客户之前已经挑选好的,主卧、次卧进行了无主灯的设计,床头背景墙上都是采用了现在比较环保的竹纤维板定制护墙板,配套线性灯,简洁明快有设计感。




家装攻略
- 二手房装修旧房翻新太难了,想要装修不求人?建议收藏!
- 工地巡检:步履不停,以行动兑现品质承诺,严格把控每一环!
- 避坑指南:装修坑多、水深?归根结底五个字:信息不对称
- 工地巡检日:标准&品质是底线,专业&用心是态度!
- 好评如潮:晒一波热乎的客户评价,亲身体验过才最具有发言权!
- 最好的口碑,莫过于装修业主的真实评价!
- 南京红牛装饰:始终如一,以品质说话,以服务铸口碑!
- 再好的文案,都抵不过客户的真实反馈!“三个最”【内附完工实景】
- 工地突击巡检|严把每一处细节,用心守护每一份安心!
- 南京红牛装饰再添荣誉,荣获两面锦旗,双倍肯定,十分满意!
- 南京115㎡现代简约风装修,每一处都将“实用”和“颜值”完美兼容!
- 装修宝典:为何说企业文化是企业灵魂,是企业生存与发展的根本?
- 南京装修公司红牛装饰工地突击巡检:一厘一毫坚守品质,一心一意守护新家!
- 南京装修避坑指南:装修材料的选择,直接影响您入住新家的早晚?
- 南京比较靠谱的装修公司?南京红牛装饰装修宝典:新房装修好多久可以入住?关键在于……
- 工地巡检:双节同庆,品质同行,严把每一道工序,用心守护梦想家!
- 避坑指南:老房改造二手旧房翻新注意这几点,省心又省钱!
- 690亿元!2025最后一批“国补”资金已下达!还可叠加企补!至高可省40000元!
- 【9月再添荣誉】业主说红牛装饰设计牛!监工牛!预算牛!超满意!
- 九月秋意渐浓,南京红牛装饰工地巡检步履不停,只为兑现品质承诺!


