| 案例风格 | 中古风 | 案例户型 | 跃层 | 案例面积 | 260㎡ |
|---|---|---|---|---|---|
| 楼盘名称 | 中交荣域花园 | 设 计 师 | 刘晓芳 | 案例造价 | 半包17.5万 |
设计说明
设计户型:跃层|260㎡|7室2厅4卫
装修类型:新房装修
装修方式:半包装修
设计费服务费(元):2.6万
施工费(元):17.5万
开工日期:2025年12月22日
竣工日期:2026年07月30日
项目经理:毛步友
改造前建筑情况:
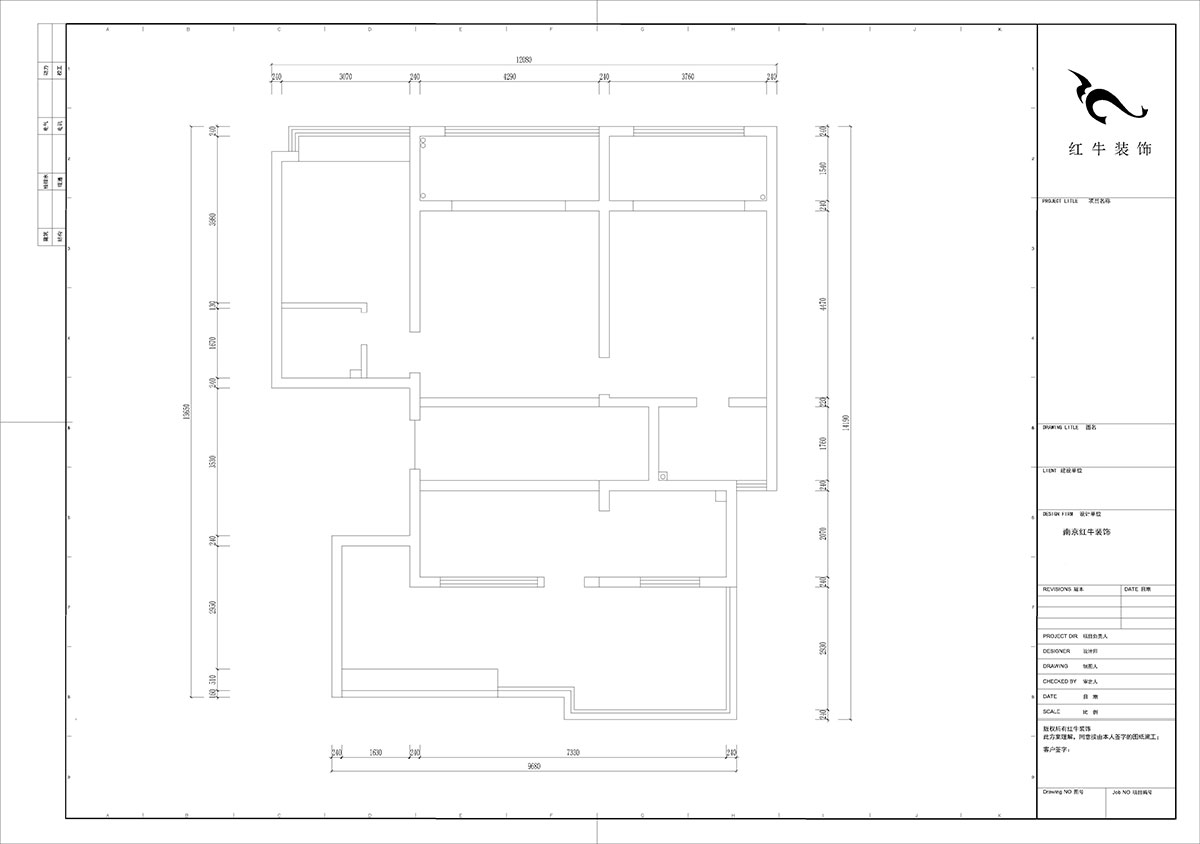
本方案一楼楼梯区域优化改造,重新规划楼梯位置,有效扩容厨房操作与餐厅活动面积,让进门视野豁然开朗,整体格局更显通透舒展,契合空间高效利用的设计需求。
方案设计说明:
本方案是围绕中古风格为主题,中古设计风格是一种混合了复古和现代元素的设计风格,在色彩搭配上,中古风用色大胆且沉稳,木质材料在中古设计中占有重要地位,胡桃木色是常用的木色,其纹理清晰粗犷,木色富有质感,具有非常好的装饰性,还能起到调节色彩平衡的作用。

一楼原始结构图

二楼原始结构图

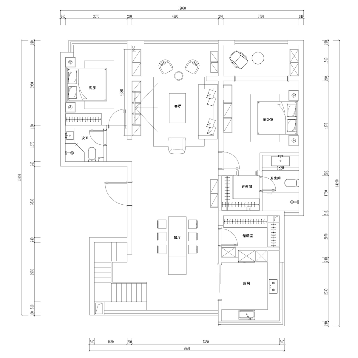
一楼平面布置图

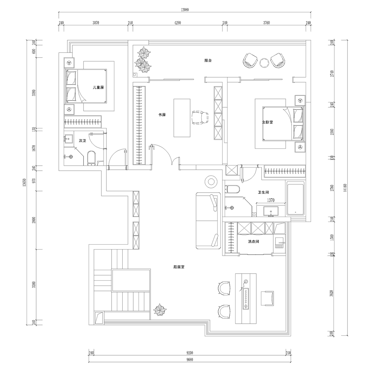
二楼平面布置图
家装攻略
- 锦旗荣誉:“设计专业,施工一流,一丝不苟,严格监督”
- 二手房装修旧房翻新太难了,想要装修不求人?建议收藏!
- 工地巡检:步履不停,以行动兑现品质承诺,严格把控每一环!
- 避坑指南:装修坑多、水深?归根结底五个字:信息不对称
- 工地巡检日:标准&品质是底线,专业&用心是态度!
- 好评如潮:晒一波热乎的客户评价,亲身体验过才最具有发言权!
- 最好的口碑,莫过于装修业主的真实评价!
- 南京红牛装饰:始终如一,以品质说话,以服务铸口碑!
- 再好的文案,都抵不过客户的真实反馈!“三个最”【内附完工实景】
- 工地突击巡检|严把每一处细节,用心守护每一份安心!
- 南京红牛装饰再添荣誉,荣获两面锦旗,双倍肯定,十分满意!
- 南京115㎡现代简约风装修,每一处都将“实用”和“颜值”完美兼容!
- 装修宝典:为何说企业文化是企业灵魂,是企业生存与发展的根本?
- 南京装修公司红牛装饰工地突击巡检:一厘一毫坚守品质,一心一意守护新家!
- 南京装修避坑指南:装修材料的选择,直接影响您入住新家的早晚?
- 南京比较靠谱的装修公司?南京红牛装饰装修宝典:新房装修好多久可以入住?关键在于……
- 工地巡检:双节同庆,品质同行,严把每一道工序,用心守护梦想家!
- 避坑指南:老房改造二手旧房翻新注意这几点,省心又省钱!
- 690亿元!2025最后一批“国补”资金已下达!还可叠加企补!至高可省40000元!
- 【9月再添荣誉】业主说红牛装饰设计牛!监工牛!预算牛!超满意!


