| 案例风格 | 现代简约风格 | 案例户型 | 平层 | 案例面积 | 86㎡ |
|---|---|---|---|---|---|
| 楼盘名称 | 保利罗兰春天 | 设 计 师 | 刘晓芳 | 案例造价 | 成品家|全包13万 |
设计说明
设计户型:130㎡|3室2厅1卫
装修类型:新房装修
装修方式:全包装修
设计费服务费(元):6000
施工费(元):6万
主材、辅材的材料费总和(元):7万
费用总和(元):13万
主材品牌:L&D瓷砖、圣象地板、李洋木门、开来橱柜、法恩莎洁具、奥普吊顶
开工日期:2020年11月20日
竣工日期:2021年04月10日
项目经理:郭才刚
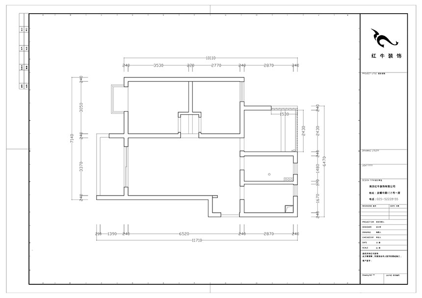
改造前建筑缺陷:
本案为86平方三居室,家里两个小孩儿,装修准备给小孩子上学住,和客户沟通,希望多一点储藏空间,造型简单,需要舒适。房屋根据业主的需求进行了一些改造,把主卧室和次卧室的两个门改到客厅这边开,两个房间都增大的面积,北面的房间有一个设备平台可以放入到房间,扩大房间。
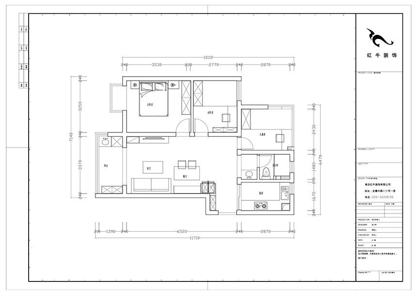
方案设计说明:
本案设计是现代风格,简约的装修风格一切从务实出发,不讲究那些花哨的装饰。从这这一点也看出了一种现代消费者的消费观,注重健康生活,节俭节约。简约的风格设计,现代简约风格在色彩设计上讲究的强调原色之间的协调,在装饰画、织物等软装元素也对整体色彩效果起到点明主题的作用。




家装攻略
- 南京红牛装饰再添荣誉,荣获两面锦旗,双倍肯定,十分满意!
- 南京115㎡现代简约风装修,每一处都将“实用”和“颜值”完美兼容!
- 装修宝典:为何说企业文化是企业灵魂,是企业生存与发展的根本?
- 南京装修公司红牛装饰工地突击巡检:一厘一毫坚守品质,一心一意守护新家!
- 南京装修避坑指南:装修材料的选择,直接影响您入住新家的早晚?
- 南京比较靠谱的装修公司?南京红牛装饰装修宝典:新房装修好多久可以入住?关键在于……
- 工地巡检:双节同庆,品质同行,严把每一道工序,用心守护梦想家!
- 避坑指南:老房改造二手旧房翻新注意这几点,省心又省钱!
- 690亿元!2025最后一批“国补”资金已下达!还可叠加企补!至高可省40000元!
- 【9月再添荣誉】业主说红牛装饰设计牛!监工牛!预算牛!超满意!
- 九月秋意渐浓,南京红牛装饰工地巡检步履不停,只为兑现品质承诺!
- “金九银十”装修黄金期,南京电视台携手红牛装饰发福利啦~
- 金秋暖心礼|一面锦旗,一句好评,一份信赖!
- 差别真的太大了!南京红牛装饰标准化水电工艺vs非正规/熟人施工队的水电工艺!
- 金九银十装修季|南京红牛装饰工程总监:工地巡检无小事,严苛落实工艺标准!
- 避坑指南:装修行业门槛低,客户陷信任危机!工期延误、不断加钱?!
- 家装宝典:装修不再走弯路,直击高频率痛难点附避坑指南!
- 设计师工地巡检,用脚步丈量细节,护航效果完美落地!
- 2025最后一批装修“国补”要来了?!还可叠加额外优惠?这次能省多少?
- 避坑指南:盘点家装中几大高频痛难点!业主应该如何应对?


