| 案例风格 | 地中海风格 | 案例户型 | 平层 | 案例面积 | 125㎡ |
|---|---|---|---|---|---|
| 楼盘名称 | 燕江府 | 设 计 师 | 刘晓芳 | 案例造价 | 20万 |
南京燕江府125平米地中海风格装修 | 主打蓝白的浪漫情怀
本方案是以地中海风格为主,是一家三口居住, 对于地中海风格的设计来说,白色和蓝色是两个主打,给人一种阳光而自然的感觉。
整个装饰上,拱形门和半拱形门马蹄状的门扇,修边合适的木制家具都是地中海风格的经典搭配元素,到处都充满着和谐和温馨,让人心情舒畅。
简单质朴的肌理墙面渲染着地中海的情怀,能满足人们对自然舒适生活的需求,以及对未来美好生活的憧憬。


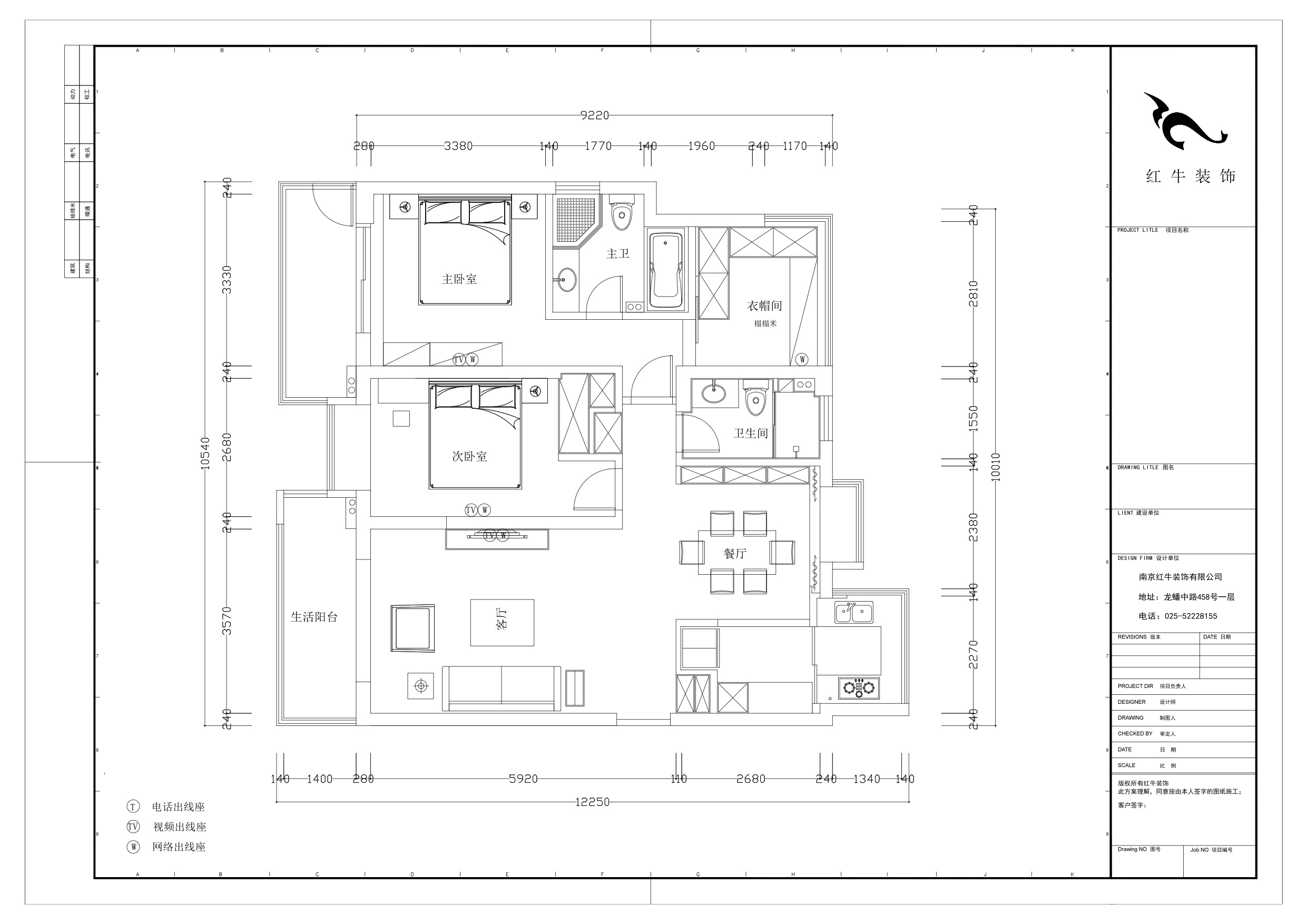
本案的户型是三室二厅一厨二卫,有一个很特殊的地方就是把主卧和书房做了一个套房,令整个房间空间很大,使用起来很方便。

在客厅的色彩方面,可以发现蓝色在整个空间中占据很大比例,能够让人感受到海洋的气息,从深蓝到浅蓝的变化,则让人感觉空间很有层次感。

顶上悬挂的水晶灯造型漂亮,开灯效果也很惊艳。
墙上的装饰画的画框就是蓝、白两种颜色,多个不同大小、不同规格的装饰画组合在一起,很有设计感。
条纹图案的沙发,显得明快时尚,而地毯的蓝白条纹则很有地中海风情。

以白色为主色调的餐厅,显得尤为纯净雅致,最吸睛的就是蓝色的内嵌的置物架,顶部的拱形设计就是地中海风格的典型特征。
桌旗使餐桌更具有质感,在这样的餐桌用餐,心情都会愉快很多。

墙上的罗盘装饰物很有趣,让人想到了海洋,散发出的很浓的异域风情。
旁边就是厨房,可以发现,餐厅与厨房没有隔开,这样能让厨房提升整体的开放性和通透性。

橱柜柜门的颜色决定了整个厨房的色调,给燥热的厨房空间带来一丝清凉。
此外,厨房家电采用了嵌入式的设计,被“藏”了起来。在能正常使用家电的前提下,厨房显得更整洁、美观了。

这就是主卧大套房的卧室部分,卧室装修在颜色上以浅色为主。
床体为白色,四角有圆润的罗马圆柱装饰,更加体现地中海风格。两边是对称摆放的双抽床头柜,简单大方。
浅蓝色的背景墙简非常清爽,给人一种置身海洋的感觉。墙上对称悬挂的两幅装饰画,又增添了几分时尚气息。

这是主卧的卫生间,不同的蓝色、白色瓷砖拼贴在一起,在井然有序中又体现出生动和变化,看着感觉心情舒畅。
角落处隔出了淋浴房,透明玻璃材质显得很美观。墙上竖直排列悬挂的三幅装饰画,内容是轮船、游泳圈,使人联想到海洋。

这就是主卧大套房中的书房,书架依墙而立,上面摆放着工艺品和书籍,看似无意却颇有艺术感,剩下的就是看书学习时使用的一桌一椅,总体来说,书房简单却不乏味。

这间是次卧,梳妆台是必不可少的家具,它的造型优雅、还散发着一种浪漫气息。
如果少了床旗,那么房间的颜值必将大打折扣,床旗的蓝色与枕头的蓝色相呼应,使床铺看起来不再单调。
床头的台灯造型很有意思,有极细的灯脚,给空间带来一丝活泼的味道。

在这间卫生间里,第一眼就注意到了圆角的矩形浴室镜,使用这样的镜子可以避免被边角弄伤,而且这样边角也不容易磨损。
洗手台的造型简洁,方便清理,显得大气,还不容易过时。台下有充足的储物空间,杂物放在其中,可以让整个卫生间显得有序。
家装攻略
- 南京红牛装饰再添荣誉,荣获两面锦旗,双倍肯定,十分满意!
- 南京115㎡现代简约风装修,每一处都将“实用”和“颜值”完美兼容!
- 装修宝典:为何说企业文化是企业灵魂,是企业生存与发展的根本?
- 南京装修公司红牛装饰工地突击巡检:一厘一毫坚守品质,一心一意守护新家!
- 南京装修避坑指南:装修材料的选择,直接影响您入住新家的早晚?
- 南京比较靠谱的装修公司?南京红牛装饰装修宝典:新房装修好多久可以入住?关键在于……
- 工地巡检:双节同庆,品质同行,严把每一道工序,用心守护梦想家!
- 避坑指南:老房改造二手旧房翻新注意这几点,省心又省钱!
- 690亿元!2025最后一批“国补”资金已下达!还可叠加企补!至高可省40000元!
- 【9月再添荣誉】业主说红牛装饰设计牛!监工牛!预算牛!超满意!
- 九月秋意渐浓,南京红牛装饰工地巡检步履不停,只为兑现品质承诺!
- “金九银十”装修黄金期,南京电视台携手红牛装饰发福利啦~
- 金秋暖心礼|一面锦旗,一句好评,一份信赖!
- 差别真的太大了!南京红牛装饰标准化水电工艺vs非正规/熟人施工队的水电工艺!
- 金九银十装修季|南京红牛装饰工程总监:工地巡检无小事,严苛落实工艺标准!
- 避坑指南:装修行业门槛低,客户陷信任危机!工期延误、不断加钱?!
- 家装宝典:装修不再走弯路,直击高频率痛难点附避坑指南!
- 设计师工地巡检,用脚步丈量细节,护航效果完美落地!
- 2025最后一批装修“国补”要来了?!还可叠加额外优惠?这次能省多少?
- 避坑指南:盘点家装中几大高频痛难点!业主应该如何应对?


