| 案例风格 | 现代简约风格 | 案例户型 | 跃层 | 案例面积 | 280㎡ |
|---|---|---|---|---|---|
| 楼盘名称 | 中交荣域花园 | 设 计 师 | 刘晓芳 | 案例造价 | 半包17.5万 |
设计说明
设计户型:跃层|280㎡|7室2厅4卫
装修类型:新房装修
装修方式:半包装修
设计费服务费(元):2.8万
施工费(元):17.5万
开工日期:2025年12月22日
竣工日期:2026年07月30日
项目经理:毛步友
改造前建筑情况:
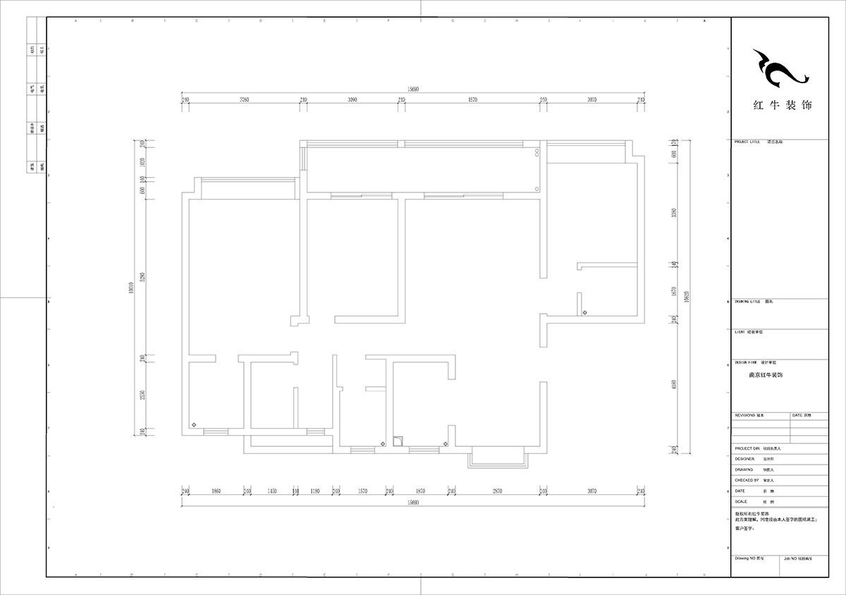
本方案楼梯区域改造,拆除一楼原有隔断墙体,将与客厅打通衔接。拓宽视觉动线,让整体格局更显通透敞亮;同时以简约线条与原木质感呼应现代原木风基调,营造出宽敞舒适、浑然一体的生活氛围。
方案设计说明:
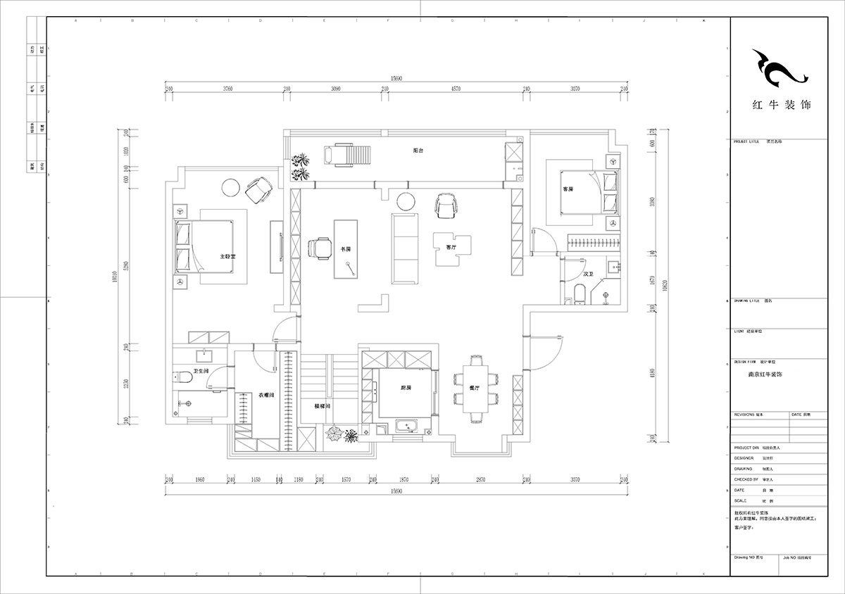
本方案是围绕现代风格为主题,地面装饰多选用地板或哑光地砖,使空间上下色调由浅至深,让居家环境沉静又温柔。将简约设计与自然木质感相融,摒弃冗余装饰,以利落线条勾勒空间轮廓。巧用原木肌理与中性色调营造温润氛围,打造通透敞亮、兼具实用功能与治愈质感的现代栖居之所,尽显舒适自然的生活美学。

一楼原始结构图

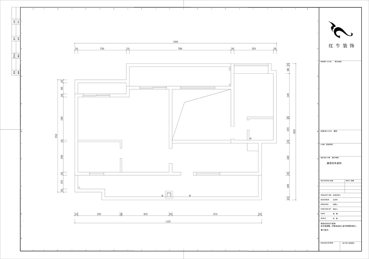
二楼原始结构图

一楼平面布置图

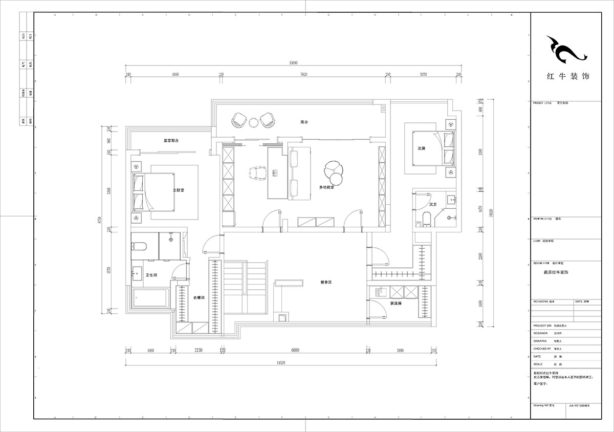
二楼平面布置图
家装攻略
- 锦旗荣誉:“设计专业,施工一流,一丝不苟,严格监督”
- 二手房装修旧房翻新太难了,想要装修不求人?建议收藏!
- 工地巡检:步履不停,以行动兑现品质承诺,严格把控每一环!
- 避坑指南:装修坑多、水深?归根结底五个字:信息不对称
- 工地巡检日:标准&品质是底线,专业&用心是态度!
- 好评如潮:晒一波热乎的客户评价,亲身体验过才最具有发言权!
- 最好的口碑,莫过于装修业主的真实评价!
- 南京红牛装饰:始终如一,以品质说话,以服务铸口碑!
- 再好的文案,都抵不过客户的真实反馈!“三个最”【内附完工实景】
- 工地突击巡检|严把每一处细节,用心守护每一份安心!
- 南京红牛装饰再添荣誉,荣获两面锦旗,双倍肯定,十分满意!
- 南京115㎡现代简约风装修,每一处都将“实用”和“颜值”完美兼容!
- 装修宝典:为何说企业文化是企业灵魂,是企业生存与发展的根本?
- 南京装修公司红牛装饰工地突击巡检:一厘一毫坚守品质,一心一意守护新家!
- 南京装修避坑指南:装修材料的选择,直接影响您入住新家的早晚?
- 南京比较靠谱的装修公司?南京红牛装饰装修宝典:新房装修好多久可以入住?关键在于……
- 工地巡检:双节同庆,品质同行,严把每一道工序,用心守护梦想家!
- 避坑指南:老房改造二手旧房翻新注意这几点,省心又省钱!
- 690亿元!2025最后一批“国补”资金已下达!还可叠加企补!至高可省40000元!
- 【9月再添荣誉】业主说红牛装饰设计牛!监工牛!预算牛!超满意!


