| 案例风格 | 现代简约风格 | 案例户型 | 平层 | 案例面积 | 60㎡ |
|---|---|---|---|---|---|
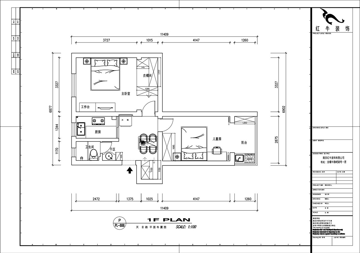
| 楼盘名称 | 天目路27号 | 设 计 师 | 魏明花 | 案例造价 | 定制家|全包9.3万 |
设计说明
设计户型:60㎡|2室1厅1卫
装修类型:二手房装修
装修方式:全包装修
设计费服务费(元):3000
施工费(元):4.3万
主材、辅材的材料费总和(元):5万
费用总和(元):9.3万
主材品牌:欧神诺瓷砖、金豪森木门、开来橱柜、法恩莎洁具、奥普吊顶
开工日期:2022年04月10日
竣工日期:2022年07月29日
项目经理:徐冬林
改造前建筑缺陷:
1、卫生间门洞太小,没有干湿分离
2、餐厅边上储藏间好好利用一下
3、主卧室空间有点大
方案设计说明:
一家三口居住,对装修有自己的见解,希望未来的房子简洁、实用、大气,最终确定了现代风。而本案在设计时其特色是将设计的元素、色彩、照明、原材料简化到最少程度,但是对材料的舒适度要求很高。因此,现代的空间设计非常含蓄,往往能起到以少胜多、以简胜繁的效果,艺术创意宜简不宜繁,宜藏不宜显。




家装攻略
- 南京红牛装饰再添荣誉,荣获两面锦旗,双倍肯定,十分满意!
- 南京115㎡现代简约风装修,每一处都将“实用”和“颜值”完美兼容!
- 装修宝典:为何说企业文化是企业灵魂,是企业生存与发展的根本?
- 南京装修公司红牛装饰工地突击巡检:一厘一毫坚守品质,一心一意守护新家!
- 南京装修避坑指南:装修材料的选择,直接影响您入住新家的早晚?
- 南京比较靠谱的装修公司?南京红牛装饰装修宝典:新房装修好多久可以入住?关键在于……
- 工地巡检:双节同庆,品质同行,严把每一道工序,用心守护梦想家!
- 避坑指南:老房改造二手旧房翻新注意这几点,省心又省钱!
- 690亿元!2025最后一批“国补”资金已下达!还可叠加企补!至高可省40000元!
- 【9月再添荣誉】业主说红牛装饰设计牛!监工牛!预算牛!超满意!
- 九月秋意渐浓,南京红牛装饰工地巡检步履不停,只为兑现品质承诺!
- “金九银十”装修黄金期,南京电视台携手红牛装饰发福利啦~
- 金秋暖心礼|一面锦旗,一句好评,一份信赖!
- 差别真的太大了!南京红牛装饰标准化水电工艺vs非正规/熟人施工队的水电工艺!
- 金九银十装修季|南京红牛装饰工程总监:工地巡检无小事,严苛落实工艺标准!
- 避坑指南:装修行业门槛低,客户陷信任危机!工期延误、不断加钱?!
- 家装宝典:装修不再走弯路,直击高频率痛难点附避坑指南!
- 设计师工地巡检,用脚步丈量细节,护航效果完美落地!
- 2025最后一批装修“国补”要来了?!还可叠加额外优惠?这次能省多少?
- 避坑指南:盘点家装中几大高频痛难点!业主应该如何应对?


