| 案例风格 | 现代简约风格 | 案例户型 | 平层 | 案例面积 | 60㎡ |
|---|---|---|---|---|---|
| 楼盘名称 | 天津新村 | 设 计 师 | 熊皓宇 | 案例造价 | 定制家|全包10.5万 |
设计说明
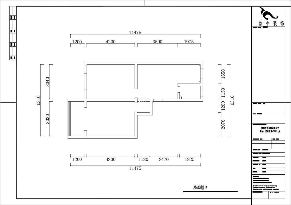
设计户型:60㎡|2室1厅1卫
装修类型:老房改造装修
装修方式:全包装修
设计费服务费(元):3000
施工费(元):5.5万
主材、辅材的材料费总和(元):5万
费用总和(元):10.5万
主材品牌:欧神诺瓷砖、圣象地板、金豪森木门、欧派橱柜、法恩莎洁具、奥普吊顶
开工日期:2022年03月18日
竣工日期:2022年06月20日
项目经理:张志飞
改造前建筑缺陷:
本案户型面积较小,但房型规则,两卧室面积较大且朝南,采光较好,厨卫的面积面积偏小,功能布局需要合理划分,同时业主对于储物空间要求很高。
方案设计说明:
本案为城市中心学区房,一家三口居住,小朋友即将成为小学生,业主夫妻俩平时工作比较忙,经沟通客厅只保留就餐兼顾办公学习的空间。因厨房面积偏小,冰箱我们安排到了餐厅,卫生间洗漱台盆柜,也和进户鞋柜结合设计。两个卧室的面积比较大,我们在基础的衣柜储物上,又增加了其他储物柜。




家装攻略
- 好评如潮:晒一波热乎的客户评价,亲身体验过才最具有发言权!
- 最好的口碑,莫过于装修业主的真实评价!
- 南京红牛装饰:始终如一,以品质说话,以服务铸口碑!
- 再好的文案,都抵不过客户的真实反馈!“三个最”【内附完工实景】
- 工地突击巡检|严把每一处细节,用心守护每一份安心!
- 南京红牛装饰再添荣誉,荣获两面锦旗,双倍肯定,十分满意!
- 南京115㎡现代简约风装修,每一处都将“实用”和“颜值”完美兼容!
- 装修宝典:为何说企业文化是企业灵魂,是企业生存与发展的根本?
- 南京装修公司红牛装饰工地突击巡检:一厘一毫坚守品质,一心一意守护新家!
- 南京装修避坑指南:装修材料的选择,直接影响您入住新家的早晚?
- 南京比较靠谱的装修公司?南京红牛装饰装修宝典:新房装修好多久可以入住?关键在于……
- 工地巡检:双节同庆,品质同行,严把每一道工序,用心守护梦想家!
- 避坑指南:老房改造二手旧房翻新注意这几点,省心又省钱!
- 690亿元!2025最后一批“国补”资金已下达!还可叠加企补!至高可省40000元!
- 【9月再添荣誉】业主说红牛装饰设计牛!监工牛!预算牛!超满意!
- 九月秋意渐浓,南京红牛装饰工地巡检步履不停,只为兑现品质承诺!
- “金九银十”装修黄金期,南京电视台携手红牛装饰发福利啦~
- 金秋暖心礼|一面锦旗,一句好评,一份信赖!
- 差别真的太大了!南京红牛装饰标准化水电工艺vs非正规/熟人施工队的水电工艺!
- 金九银十装修季|南京红牛装饰工程总监:工地巡检无小事,严苛落实工艺标准!


