| 案例风格 | 现代简约风格 | 案例户型 | 平层 | 案例面积 | 90㎡ | 
|---|---|---|---|---|---|
| 楼盘名称 | 蓝天华门 | 设 计 师 | 刘萍萍 | 案例造价 | 定制家|全包14万 | 
设计说明
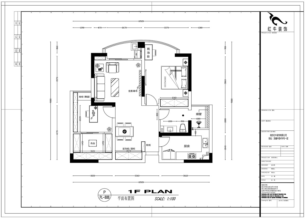
设计户型:90㎡|2室2厅1卫
装修方式:全包装修
主材品牌:诺贝尔塞尚瓷砖、圣象实木多层地板、戴胜兰博尼木门、开来橱柜、科勒洁具
方案设计说明:
本案设计的整体风格,定位为现代简约。
男业主休息时间相对充裕,平时喜欢宅在家里。对于风格方面不是特别的在意,力求简洁、实用。平面布置上只留主卧,次卧改成书房兼衣帽间,功能划分明确。
客餐厅采用低色温的暖光源,全屋以浅灰色艺术涂料做基底色,绒布地毯让空间材质感更柔和,电视背景墙预留可隐藏的100寸电动投影幕布,配合后期的专业音响,沉浸式家庭影院的氛围。
卧室的曲面落地窗搭配纯白窗纱,白天折射进室内的光线给人以治愈感。书房作为办公娱乐空间,书桌旁转角的飘窗给了原本不大的空间一个视觉的开放性,而衣帽间用全玻璃隔断,使得小书房丝毫不会让人觉得紧凑。
空间分布上,充分考虑了居住者的感受,也让往来的亲朋能有一个更好、更舒适、更欢快的生活空间。仿佛自己放慢了生活的步伐,也能一路欣赏这生活的美妙旋律。


家装攻略
- 南京红牛装饰再添荣誉,荣获两面锦旗,双倍肯定,十分满意!
- 南京115㎡现代简约风装修,每一处都将“实用”和“颜值”完美兼容!
- 装修宝典:为何说企业文化是企业灵魂,是企业生存与发展的根本?
- 南京装修公司红牛装饰工地突击巡检:一厘一毫坚守品质,一心一意守护新家!
- 南京装修避坑指南:装修材料的选择,直接影响您入住新家的早晚?
- 南京比较靠谱的装修公司?南京红牛装饰装修宝典:新房装修好多久可以入住?关键在于……
- 工地巡检:双节同庆,品质同行,严把每一道工序,用心守护梦想家!
- 避坑指南:老房改造二手旧房翻新注意这几点,省心又省钱!
- 690亿元!2025最后一批“国补”资金已下达!还可叠加企补!至高可省40000元!
- 【9月再添荣誉】业主说红牛装饰设计牛!监工牛!预算牛!超满意!
- 九月秋意渐浓,南京红牛装饰工地巡检步履不停,只为兑现品质承诺!
- “金九银十”装修黄金期,南京电视台携手红牛装饰发福利啦~
- 金秋暖心礼|一面锦旗,一句好评,一份信赖!
- 差别真的太大了!南京红牛装饰标准化水电工艺vs非正规/熟人施工队的水电工艺!
- 金九银十装修季|南京红牛装饰工程总监:工地巡检无小事,严苛落实工艺标准!
- 避坑指南:装修行业门槛低,客户陷信任危机!工期延误、不断加钱?!
- 家装宝典:装修不再走弯路,直击高频率痛难点附避坑指南!
- 设计师工地巡检,用脚步丈量细节,护航效果完美落地!
- 2025最后一批装修“国补”要来了?!还可叠加额外优惠?这次能省多少?
- 避坑指南:盘点家装中几大高频痛难点!业主应该如何应对?
 
                 
                     
                     
                     
                     
                     
                     
                     
                     
                     
                     
                     
                     
                     
                     
                     
                     
                     
                     
                     
                     
  
  
  
  
  
  
  
               
  
  
  
  
  
  
  
 


