| 案例风格 | 轻奢风格 | 案例户型 | 平层 | 案例面积 | 140㎡ |
|---|---|---|---|---|---|
| 楼盘名称 | 凯悦天琴 | 设 计 师 | 红牛装饰设计团队 | 案例造价 | 全包20万 |
设计说明
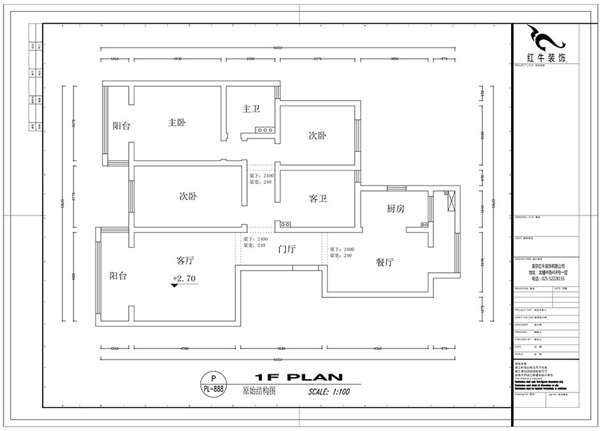
设计户型:140㎡|3室2厅1卫
装修类型:老房装修
装修方式:全包装修
设计费服务费(元):6500
施工费(元):6万
主材、辅材的材料费总和(元):14万
费用总和(元):20万
主材品牌:L&D瓷砖、圣象地板、戴胜木门、开来橱柜、法恩莎洁具、奥普吊顶
开工日期:2020年11月29日
竣工日期:2021年04月01日
项目经理:蒋振玉
改造前建筑缺陷:
老房子的低楼层,采光较差,墙面大面积木饰面降低了光线折射,更显昏暗。
原厨房小,北阳台利用率低。
家里常住人口不多,两卫略显浪费。
方案设计说明:
本案设计的整体风格,定位为现代简约。
平日里一家三口居住,老人偶尔来串门,故把主卧卫生间改为衣帽间,增加收纳空间。
客卫原先带了一个小储藏间,现考虑居家的实用性,实行干区、坐便、冲淋三室分离,动静互不干扰,从最大程度上实现了各种功能的独立。
北阳台隔开,从厨房打通出去,实现了厨房使用面积的增加,解决了厨房收纳的问题。
整体效果上采用简洁明快的现代轻奢,提亮了光线问题,也更适合年轻人的生活节奏。




家装攻略
- 南京红牛装饰:始终如一,以品质说话,以服务铸口碑!
- 再好的文案,都抵不过客户的真实反馈!“三个最”【内附完工实景】
- 工地突击巡检|严把每一处细节,用心守护每一份安心!
- 南京红牛装饰再添荣誉,荣获两面锦旗,双倍肯定,十分满意!
- 南京115㎡现代简约风装修,每一处都将“实用”和“颜值”完美兼容!
- 装修宝典:为何说企业文化是企业灵魂,是企业生存与发展的根本?
- 南京装修公司红牛装饰工地突击巡检:一厘一毫坚守品质,一心一意守护新家!
- 南京装修避坑指南:装修材料的选择,直接影响您入住新家的早晚?
- 南京比较靠谱的装修公司?南京红牛装饰装修宝典:新房装修好多久可以入住?关键在于……
- 工地巡检:双节同庆,品质同行,严把每一道工序,用心守护梦想家!
- 避坑指南:老房改造二手旧房翻新注意这几点,省心又省钱!
- 690亿元!2025最后一批“国补”资金已下达!还可叠加企补!至高可省40000元!
- 【9月再添荣誉】业主说红牛装饰设计牛!监工牛!预算牛!超满意!
- 九月秋意渐浓,南京红牛装饰工地巡检步履不停,只为兑现品质承诺!
- “金九银十”装修黄金期,南京电视台携手红牛装饰发福利啦~
- 金秋暖心礼|一面锦旗,一句好评,一份信赖!
- 差别真的太大了!南京红牛装饰标准化水电工艺vs非正规/熟人施工队的水电工艺!
- 金九银十装修季|南京红牛装饰工程总监:工地巡检无小事,严苛落实工艺标准!
- 避坑指南:装修行业门槛低,客户陷信任危机!工期延误、不断加钱?!
- 家装宝典:装修不再走弯路,直击高频率痛难点附避坑指南!


