| 案例风格 | 现代简约风格 | 案例户型 | 平层 | 案例面积 | 70㎡ |
|---|---|---|---|---|---|
| 楼盘名称 | 大四福巷3号 | 设 计 师 | 红牛装饰设计团队 | 案例造价 | 成品家|全包12.09万 |
设计说明
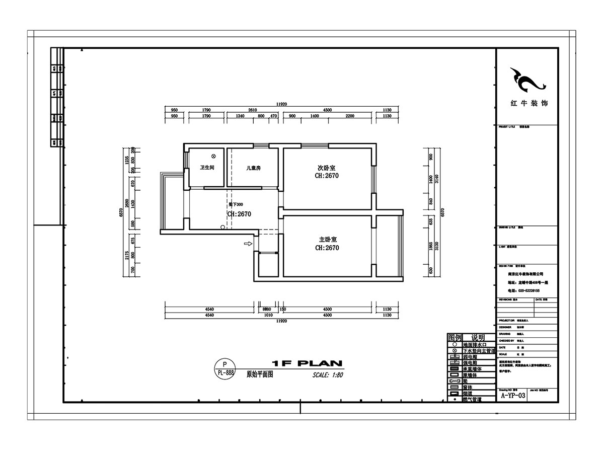
设计户型:70㎡ | 3室1厅1卫
装修类型:老房装修
装修方式:全包装修
设计费服务费(元):3000
施工费(元):5万
主材、辅材的材料费总和(元):7.09万
费用总和(元):12.09万
主材品牌:欧神诺瓷砖、圣象地板、中阳木门、欧派橱柜、法恩莎洁具、奥普吊顶
开工日期:2020年10月31日
竣工日期:2021年01月26日
项目经理:徐东林
改造前建筑缺陷:
老房子采光较差,原始餐厅空间较小,无电视背景墙,缺乏收纳空间。
方案设计说明:
本方案是围绕现代简约为主题,适合于30岁左右的三口之家居住,以简洁明快的设计风格为主调,简洁和实用是现代简约风格的基本特点。装修时希望在经济、实用、舒适的同时,体现一定的温馨。全面考虑,在总体布局上方面尽量满足业主生活的需求,主要装修材料以壁纸为主,壁纸的朴素大方来装饰墙面的景点。更体现现代简约的之感。创造一个温馨,健康的家庭环境。在功能方面,客厅是主任品味的象征,体现了主人品格,地位,也是交友的场合,选用颜色光泽较为流行的灰色系磁砖,沙发环绕着茶几,沙发成组靠在一角,给人一种舒服安静的感觉。电视墙的装修我选用了素色花纹墙纸,充分利用了房体的高度,营建了视觉上高敞宽广的效果。吊顶只简略做了一个直线外型,突显简练流畅。




家装攻略
- 南京红牛装饰:始终如一,以品质说话,以服务铸口碑!
- 再好的文案,都抵不过客户的真实反馈!“三个最”【内附完工实景】
- 工地突击巡检|严把每一处细节,用心守护每一份安心!
- 南京红牛装饰再添荣誉,荣获两面锦旗,双倍肯定,十分满意!
- 南京115㎡现代简约风装修,每一处都将“实用”和“颜值”完美兼容!
- 装修宝典:为何说企业文化是企业灵魂,是企业生存与发展的根本?
- 南京装修公司红牛装饰工地突击巡检:一厘一毫坚守品质,一心一意守护新家!
- 南京装修避坑指南:装修材料的选择,直接影响您入住新家的早晚?
- 南京比较靠谱的装修公司?南京红牛装饰装修宝典:新房装修好多久可以入住?关键在于……
- 工地巡检:双节同庆,品质同行,严把每一道工序,用心守护梦想家!
- 避坑指南:老房改造二手旧房翻新注意这几点,省心又省钱!
- 690亿元!2025最后一批“国补”资金已下达!还可叠加企补!至高可省40000元!
- 【9月再添荣誉】业主说红牛装饰设计牛!监工牛!预算牛!超满意!
- 九月秋意渐浓,南京红牛装饰工地巡检步履不停,只为兑现品质承诺!
- “金九银十”装修黄金期,南京电视台携手红牛装饰发福利啦~
- 金秋暖心礼|一面锦旗,一句好评,一份信赖!
- 差别真的太大了!南京红牛装饰标准化水电工艺vs非正规/熟人施工队的水电工艺!
- 金九银十装修季|南京红牛装饰工程总监:工地巡检无小事,严苛落实工艺标准!
- 避坑指南:装修行业门槛低,客户陷信任危机!工期延误、不断加钱?!
- 家装宝典:装修不再走弯路,直击高频率痛难点附避坑指南!


