| 案例风格 | 现代简约风格 | 案例户型 | 平层 | 案例面积 | 89㎡ |
|---|---|---|---|---|---|
| 楼盘名称 | 保利国际社区 | 设 计 师 | 红牛装饰设计团队 | 案例造价 | |



南京保利国际社区88平米现代简约风格装修
基本情况
开发商:保利里城
区域:栖霞区
地址:太新路与燕园路交汇处(经五路和太新路交汇处西50米)
户型:2室1厅
使用面积:88㎡
装修风格:现代简约
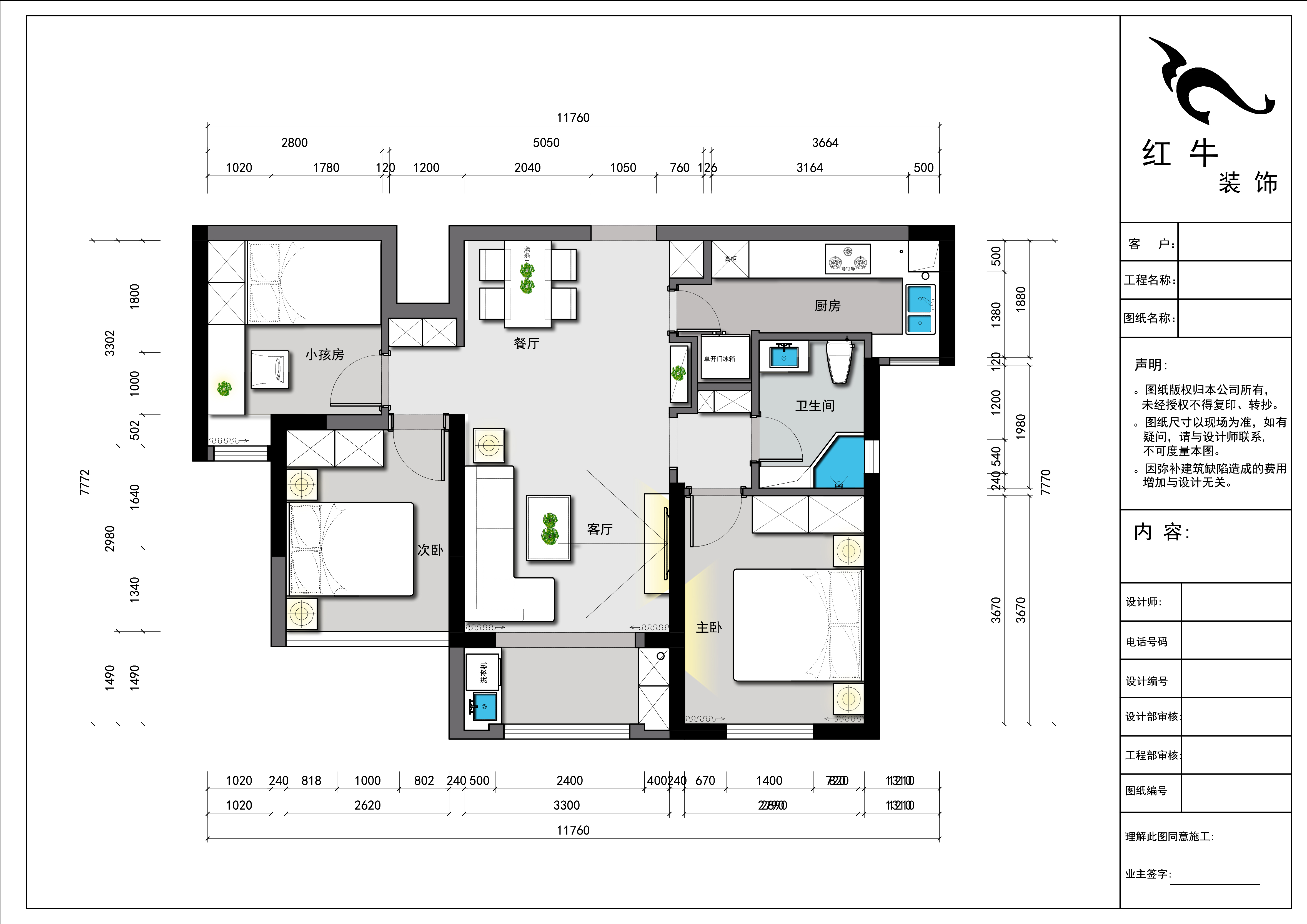
原始户型分析

△原始户型图
1 原始户型优点
1、管道井可以利用
2、厨卫空间可以进一步分割
3、有赠送空间
2 原始户型缺点
1、冰箱无处安放
2、南次卧空间小
3、卫生间空间小
设计成果展示
厨卫空间进行了改动
1、使冰箱更合理的放置
2、卫生间空间更大,舒适感增加
3、拆除南次卧墙体,增大卧室空间

△平面设计1

△平面设计2
效果图展示
原木色与淡橘色的搭配非常和谐,金属色给空间带来了前所未有的现代感。

△客厅
墙面明亮色的搭配,使空间层次感有所增加,顶面采用灯带错层的设计,空间不再压抑。
后现代金属灯具搭配,科技感更足。
墙面造型的金属跟顶面灯具形成呼应。

△餐厅
通过结构改动,进门玄关位置多出了鞋柜的空间。

△主卧
素色墙纸配以红色的吊灯,形成视觉上的鲜明对比。
白色的衣柜让空间更加干净整洁。
顶面吊顶加上金属的点缀,凸显客户的个性需求。

△次卧
衣柜使用推拉门能够节约面积,门上色块的撞色设计,显得个性张扬。

△厨房
L型厨房,操作便利,嵌入式厨电设计使之不显凌乱。
安装了满满的顶柜、底柜,收纳空间充足。

△卫生间
五边形的角落淋浴房,能够节省空间。
马桶后方的墙上,贴上了花纹瓷砖,成为卫生间的特别一角。
家装攻略
- 避坑指南:装修坑多、水深?归根结底五个字:信息不对称
- 工地巡检日:标准&品质是底线,专业&用心是态度!
- 好评如潮:晒一波热乎的客户评价,亲身体验过才最具有发言权!
- 最好的口碑,莫过于装修业主的真实评价!
- 南京红牛装饰:始终如一,以品质说话,以服务铸口碑!
- 再好的文案,都抵不过客户的真实反馈!“三个最”【内附完工实景】
- 工地突击巡检|严把每一处细节,用心守护每一份安心!
- 南京红牛装饰再添荣誉,荣获两面锦旗,双倍肯定,十分满意!
- 南京115㎡现代简约风装修,每一处都将“实用”和“颜值”完美兼容!
- 装修宝典:为何说企业文化是企业灵魂,是企业生存与发展的根本?
- 南京装修公司红牛装饰工地突击巡检:一厘一毫坚守品质,一心一意守护新家!
- 南京装修避坑指南:装修材料的选择,直接影响您入住新家的早晚?
- 南京比较靠谱的装修公司?南京红牛装饰装修宝典:新房装修好多久可以入住?关键在于……
- 工地巡检:双节同庆,品质同行,严把每一道工序,用心守护梦想家!
- 避坑指南:老房改造二手旧房翻新注意这几点,省心又省钱!
- 690亿元!2025最后一批“国补”资金已下达!还可叠加企补!至高可省40000元!
- 【9月再添荣誉】业主说红牛装饰设计牛!监工牛!预算牛!超满意!
- 九月秋意渐浓,南京红牛装饰工地巡检步履不停,只为兑现品质承诺!
- “金九银十”装修黄金期,南京电视台携手红牛装饰发福利啦~
- 金秋暖心礼|一面锦旗,一句好评,一份信赖!


