| 案例风格 | 现代简约风格 | 案例户型 | 公寓 | 案例面积 | 125㎡ |
|---|---|---|---|---|---|
| 楼盘名称 | 燕江府 | 设 计 师 | 红牛装饰设计团队 | 案例造价 | 18万 |
设计理念
本案设计的整体风格,定位为简约现代。
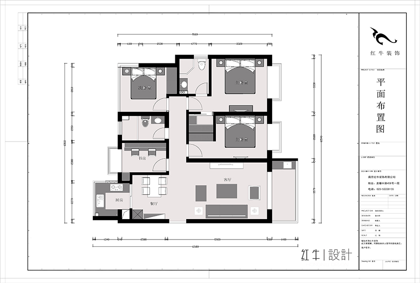
户型本身的结构比较规整,平面布置在后期做出了合理的规划,让空间在布局、使用上更为舒适。
客餐厅色调清雅,休闲、随性又不失精致,电视背景墙没有过多的华丽修饰,给空间本身一个开拓、延展性,给居住者一个慵懒、明快的起居环境。主卧次卧,依靠家具本身的线条感,搭配写实主义的装饰画,给人以休闲自在的视觉感受。书房是办公空间,设计者在整面墙留白,搭配浅色条纹壁纸,给了本就不大的空间一个视觉的开放性,心情也自然就舒缓很多。
空间分布上,充分考虑了居住者的感受,也让往来的亲朋能有一个更好、更舒适、更欢快的生活空间。仿佛自己放慢了生活的步伐,也能一路欣赏这生活的美妙旋律--偷得浮生半日闲。

家装攻略
- 南京红牛装饰:始终如一,以品质说话,以服务铸口碑!
- 再好的文案,都抵不过客户的真实反馈!“三个最”【内附完工实景】
- 工地突击巡检|严把每一处细节,用心守护每一份安心!
- 南京红牛装饰再添荣誉,荣获两面锦旗,双倍肯定,十分满意!
- 南京115㎡现代简约风装修,每一处都将“实用”和“颜值”完美兼容!
- 装修宝典:为何说企业文化是企业灵魂,是企业生存与发展的根本?
- 南京装修公司红牛装饰工地突击巡检:一厘一毫坚守品质,一心一意守护新家!
- 南京装修避坑指南:装修材料的选择,直接影响您入住新家的早晚?
- 南京比较靠谱的装修公司?南京红牛装饰装修宝典:新房装修好多久可以入住?关键在于……
- 工地巡检:双节同庆,品质同行,严把每一道工序,用心守护梦想家!
- 避坑指南:老房改造二手旧房翻新注意这几点,省心又省钱!
- 690亿元!2025最后一批“国补”资金已下达!还可叠加企补!至高可省40000元!
- 【9月再添荣誉】业主说红牛装饰设计牛!监工牛!预算牛!超满意!
- 九月秋意渐浓,南京红牛装饰工地巡检步履不停,只为兑现品质承诺!
- “金九银十”装修黄金期,南京电视台携手红牛装饰发福利啦~
- 金秋暖心礼|一面锦旗,一句好评,一份信赖!
- 差别真的太大了!南京红牛装饰标准化水电工艺vs非正规/熟人施工队的水电工艺!
- 金九银十装修季|南京红牛装饰工程总监:工地巡检无小事,严苛落实工艺标准!
- 避坑指南:装修行业门槛低,客户陷信任危机!工期延误、不断加钱?!
- 家装宝典:装修不再走弯路,直击高频率痛难点附避坑指南!


