| 案例风格 | 现代简约风格 | 案例户型 | 平层 | 案例面积 | 86㎡ | 
|---|---|---|---|---|---|
| 楼盘名称 | 裕华新村 | 设 计 师 | 仇美蓉 | 案例造价 | 定制家|全包10万 | 
设计说明
设计户型:86㎡|3室2厅1卫
装修类型:老房装修
装修方式:全包装修
设计费服务费(元):5000
施工费(元):4.5万
主材、辅材的材料费总和(元):5.5万
费用总和(元):10万
主材品牌:L&D瓷砖、森尚木门、开来橱柜、法恩莎卫浴、奥普吊顶
开工日期:2025年10月04日
竣工日期:2026年02月01日
项目经理:张志飞
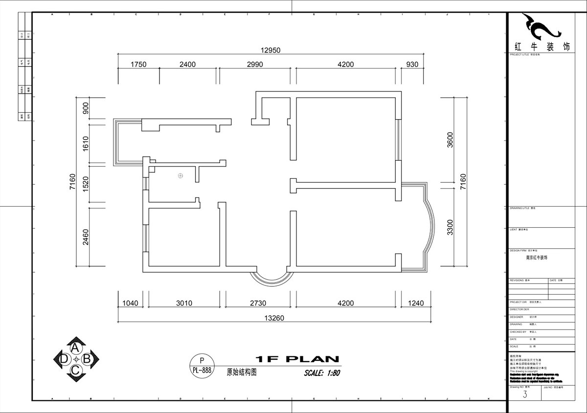
改造前建筑情况:
增加储物空间。
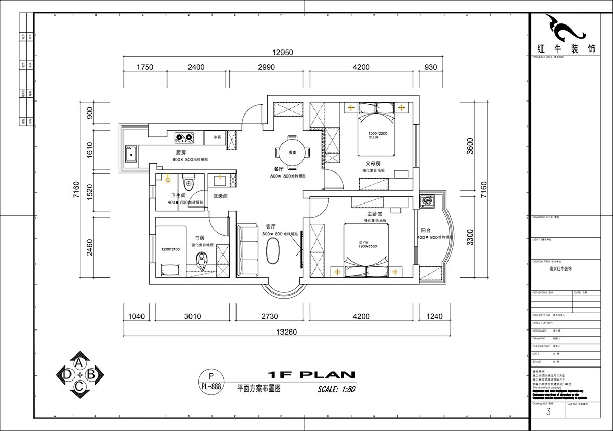
方案设计说明:
本案简约风格,客户需求增加储物功能,在设计过程中方案墙体改动不多,可以满足基本需求。扩大空间增加储物功能,能够满足客户所提需求。




家装攻略
- 工地突击巡检|严把每一处细节,用心守护每一份安心!
 - 南京红牛装饰再添荣誉,荣获两面锦旗,双倍肯定,十分满意!
 - 南京115㎡现代简约风装修,每一处都将“实用”和“颜值”完美兼容!
 - 装修宝典:为何说企业文化是企业灵魂,是企业生存与发展的根本?
 - 南京装修公司红牛装饰工地突击巡检:一厘一毫坚守品质,一心一意守护新家!
 - 南京装修避坑指南:装修材料的选择,直接影响您入住新家的早晚?
 - 南京比较靠谱的装修公司?南京红牛装饰装修宝典:新房装修好多久可以入住?关键在于……
 - 工地巡检:双节同庆,品质同行,严把每一道工序,用心守护梦想家!
 - 避坑指南:老房改造二手旧房翻新注意这几点,省心又省钱!
 - 690亿元!2025最后一批“国补”资金已下达!还可叠加企补!至高可省40000元!
 - 【9月再添荣誉】业主说红牛装饰设计牛!监工牛!预算牛!超满意!
 - 九月秋意渐浓,南京红牛装饰工地巡检步履不停,只为兑现品质承诺!
 - “金九银十”装修黄金期,南京电视台携手红牛装饰发福利啦~
 - 金秋暖心礼|一面锦旗,一句好评,一份信赖!
 - 差别真的太大了!南京红牛装饰标准化水电工艺vs非正规/熟人施工队的水电工艺!
 - 金九银十装修季|南京红牛装饰工程总监:工地巡检无小事,严苛落实工艺标准!
 - 避坑指南:装修行业门槛低,客户陷信任危机!工期延误、不断加钱?!
 - 家装宝典:装修不再走弯路,直击高频率痛难点附避坑指南!
 - 设计师工地巡检,用脚步丈量细节,护航效果完美落地!
 - 2025最后一批装修“国补”要来了?!还可叠加额外优惠?这次能省多少?
 
                
                    
                    
                    
                    
                    
                    
                    
                    
                    
                    
                    
                    
                    
                    
                    
                    
                    
                    
                    
                    
 
 
 
 
 
 
 
 
 
 
 
              
 
 
 
 
 
 
 
 

