| 案例风格 | 现代简约风格 | 案例户型 | 平层 | 案例面积 | 85㎡ |
|---|---|---|---|---|---|
| 楼盘名称 | 明月新寓花园 | 设 计 师 | 朱明琪 | 案例造价 | 定制家|全包11万 |
设计说明
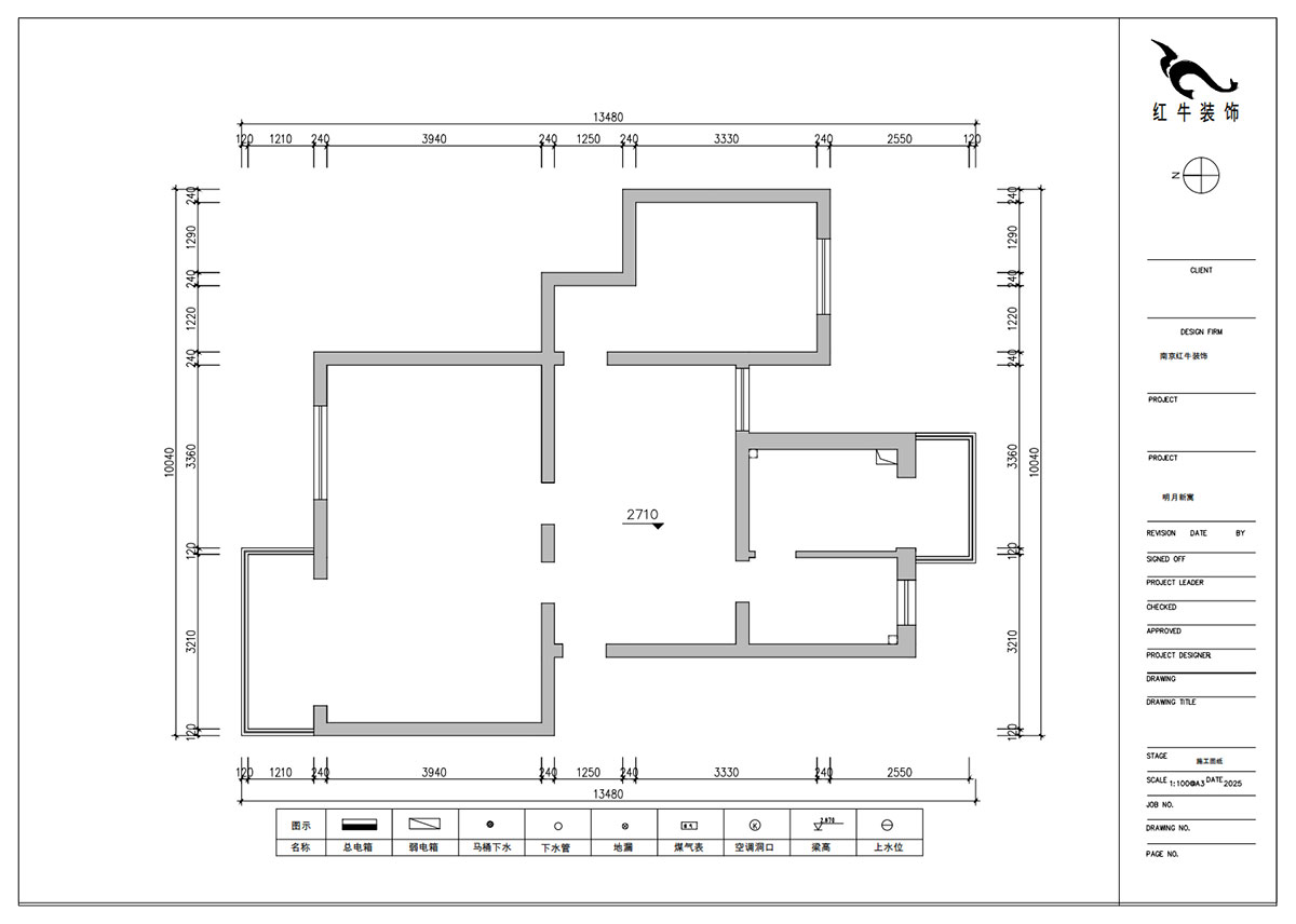
设计户型:85㎡|3室1厅1卫
装修类型:老房改造
装修方式:全包装修
设计费服务费(元):5000
施工费(元):5万
主材、辅材的材料费总和(元):6万
费用总和(元):11万
主材品牌:L&D瓷砖、圣象地板、欧派木门、开来橱柜、法恩莎洁具、奥普吊顶
开工日期:2025年09月23日
竣工日期:2025年12月30日
项目经理:毛步友
改造前建筑情况:
此户型为三房,但原户型结构餐厅过小;入户无储物;卫生间浪费,业主要求干湿分离;整体储物空间偏少。
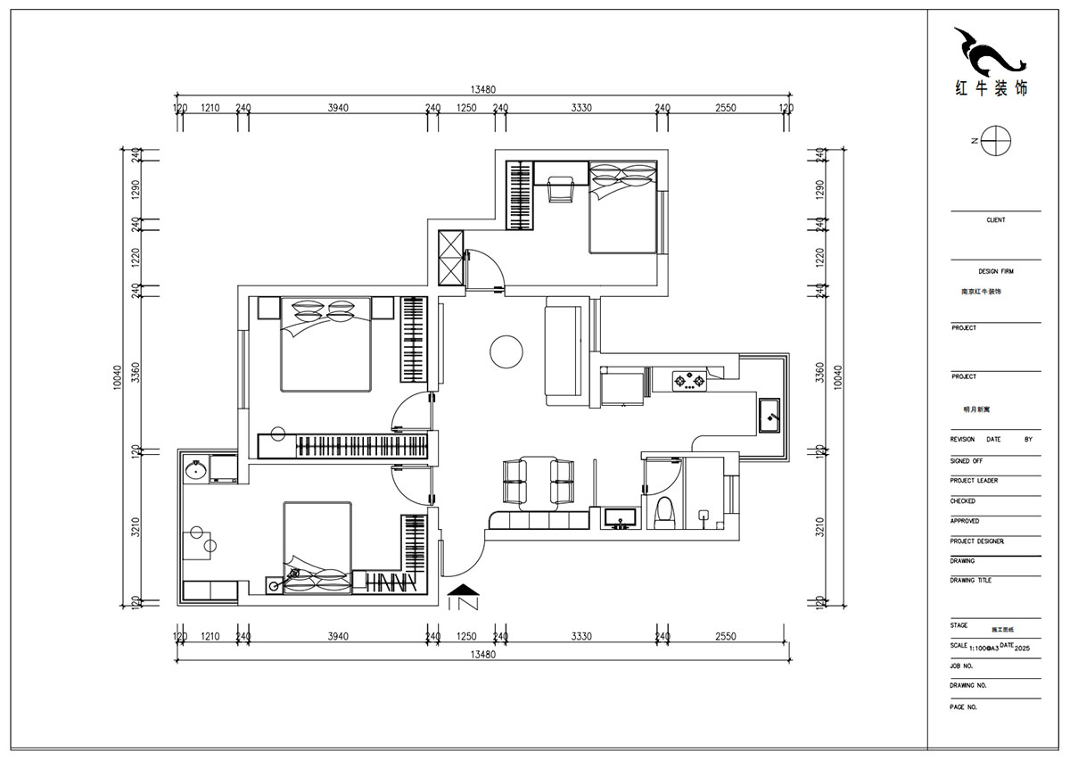
方案设计说明:
整体色调以白色、浅灰色为主,线条简洁,千净利落,在这个浮躁的时代,在简约的居家空间中,能使业主得以获得精神上的放松。
客厅说明:客厅空间墙面大面积留白,柔和的色彩,也为空间注入了时尚与温度。
餐厅说明:餐边柜扩充了厨房储物的不足,也提升了适合年轻人的使用生活方式。
卧室说明:搭配大面积的白色定制衣柜,床头的光源以不同形势呈现,既满足不同灯光需求,又恰到好处地起到了装饰效果,使整体卧室空间呈现明亮、温柔的舒适状态。
卫生间说明:干区选择整体色彩搭配干净、大方,选择大尺寸瓷砖上墙,高级感满满。




家装攻略
- 南京115㎡现代简约风装修,每一处都将“实用”和“颜值”完美兼容!
- 装修宝典:为何说企业文化是企业灵魂,是企业生存与发展的根本?
- 南京装修公司红牛装饰工地突击巡检:一厘一毫坚守品质,一心一意守护新家!
- 南京装修避坑指南:装修材料的选择,直接影响您入住新家的早晚?
- 南京比较靠谱的装修公司?南京红牛装饰装修宝典:新房装修好多久可以入住?关键在于……
- 工地巡检:双节同庆,品质同行,严把每一道工序,用心守护梦想家!
- 避坑指南:老房改造二手旧房翻新注意这几点,省心又省钱!
- 690亿元!2025最后一批“国补”资金已下达!还可叠加企补!至高可省40000元!
- 【9月再添荣誉】业主说红牛装饰设计牛!监工牛!预算牛!超满意!
- 九月秋意渐浓,南京红牛装饰工地巡检步履不停,只为兑现品质承诺!
- “金九银十”装修黄金期,南京电视台携手红牛装饰发福利啦~
- 金秋暖心礼|一面锦旗,一句好评,一份信赖!
- 差别真的太大了!南京红牛装饰标准化水电工艺vs非正规/熟人施工队的水电工艺!
- 金九银十装修季|南京红牛装饰工程总监:工地巡检无小事,严苛落实工艺标准!
- 避坑指南:装修行业门槛低,客户陷信任危机!工期延误、不断加钱?!
- 家装宝典:装修不再走弯路,直击高频率痛难点附避坑指南!
- 设计师工地巡检,用脚步丈量细节,护航效果完美落地!
- 2025最后一批装修“国补”要来了?!还可叠加额外优惠?这次能省多少?
- 避坑指南:盘点家装中几大高频痛难点!业主应该如何应对?
- 南京红牛装饰:工地突击巡检,狠抓质量,严控细节,品质交付!


