| 案例风格 | 原木风 | 案例户型 | 平层 | 案例面积 | 89㎡ |
|---|---|---|---|---|---|
| 楼盘名称 | 月牙湖花园 | 设 计 师 | 朱明琪 | 案例造价 | 定制家|全包13万 |
设计说明
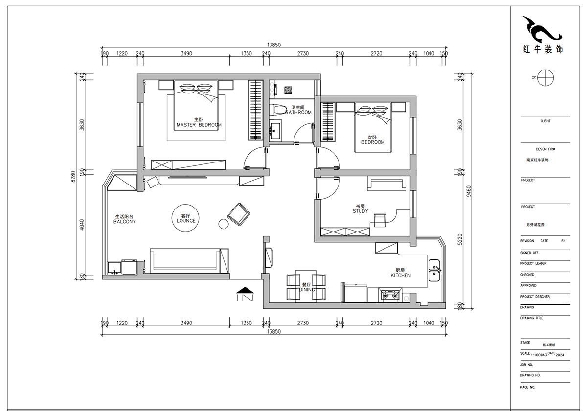
设计户型:89㎡|3室2厅1卫
装修类型:老房翻新
装修方式:全包装修
设计费服务费(元):5000
施工费(元):6万
主材、辅材的材料费总和(元):7万
费用总和(元):13万
主材品牌:L&D瓷砖、圣象地板、森尚木门、开来橱柜、法恩莎卫浴、奥普吊顶
开工日期:2024年10月12日
竣工日期:2025年01月15日
项目经理:张瑞敏
改造前建筑情况:
入户无储物区域,餐厅厨房空间不合理。
客厅与阳台空间分割,影响采光。
方案设计说明:
本案设计的整体风格,定位为原木风。
入户门厅增加鞋柜,增加入户储藏客厅的搭配以定制的原木收纳柜为主,格局之内都采用天然木质家具,最柔和的颜色,最真实的纹理,搭配球形吊灯,打造出舒适优雅的就餐环境。
当奶油色的纯净与灰色的安逸相遇,空间迸发出柔和温暖的气息,恰到好处地构建出治愈、舒适的家居氛围。




家装攻略
- 最好的口碑,莫过于装修业主的真实评价!
- 南京红牛装饰:始终如一,以品质说话,以服务铸口碑!
- 再好的文案,都抵不过客户的真实反馈!“三个最”【内附完工实景】
- 工地突击巡检|严把每一处细节,用心守护每一份安心!
- 南京红牛装饰再添荣誉,荣获两面锦旗,双倍肯定,十分满意!
- 南京115㎡现代简约风装修,每一处都将“实用”和“颜值”完美兼容!
- 装修宝典:为何说企业文化是企业灵魂,是企业生存与发展的根本?
- 南京装修公司红牛装饰工地突击巡检:一厘一毫坚守品质,一心一意守护新家!
- 南京装修避坑指南:装修材料的选择,直接影响您入住新家的早晚?
- 南京比较靠谱的装修公司?南京红牛装饰装修宝典:新房装修好多久可以入住?关键在于……
- 工地巡检:双节同庆,品质同行,严把每一道工序,用心守护梦想家!
- 避坑指南:老房改造二手旧房翻新注意这几点,省心又省钱!
- 690亿元!2025最后一批“国补”资金已下达!还可叠加企补!至高可省40000元!
- 【9月再添荣誉】业主说红牛装饰设计牛!监工牛!预算牛!超满意!
- 九月秋意渐浓,南京红牛装饰工地巡检步履不停,只为兑现品质承诺!
- “金九银十”装修黄金期,南京电视台携手红牛装饰发福利啦~
- 金秋暖心礼|一面锦旗,一句好评,一份信赖!
- 差别真的太大了!南京红牛装饰标准化水电工艺vs非正规/熟人施工队的水电工艺!
- 金九银十装修季|南京红牛装饰工程总监:工地巡检无小事,严苛落实工艺标准!
- 避坑指南:装修行业门槛低,客户陷信任危机!工期延误、不断加钱?!


