南京华润幸福里113平米现代简约风格装修——年轻夫妻的温馨之家

■项目名称:华润幸福里
■设计风格:现代简约
■建筑面积:113平米
■店面地址:南京市秦淮区龙蟠中路458号
■家装热线:025-52228153
业主是对年轻的夫妻,喜欢简约大气的风格,在沟通过程中传递出注重品质和环保的家居理念。
【客餐厅】

客厅和餐厅是连在一起的,开放式的设计让空间更加开阔,采光效果也更好,客厅整体的色调是干净的白色,显得明亮简洁,原木色的点缀中和了白色的单调冷清,增加了温馨自然的家居感。
【卧室】

大面积的高级灰和白色搭配在一起高级大气很有格调,装饰画不规整装饰在床头,乱中有序,传递出现代艺术气息,衣柜跟顶面连在一起,充分利用了空间,也不担心落灰难打扫。
【书房】

书房的采光很重要,落地窗的设计很好地考虑到了这点,也让视野更加开阔,累的时候远望一下缓解疲劳,矮矮的书架方便实用,不会显得压抑,大的装饰画让墙面不会显得单调。
【卫生间】

干湿分离的卫生间让生活更加干净方便,整体颜色比较浅,显得干净整洁,让人感到轻松舒适。
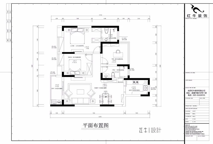
【平面图】

【平面布置图】
此案为央企华润的又一力作,位于栖霞板块尧化门片区,地理位置优越,交通方便。
此户型的设计对墙体的改动不大,但有两个空间设计不合理。
设计师经过后期细心的推敲思虑,最终把这两个问题都弱化解决,如厨房太小,那么就把冰箱拿出来,嵌入到进门的柜体里面,既增加了美观度,又把厨房的利用空间加大。
又如主卫面积太大,浪费太多,设计师把侧墙拆掉,左右设计衣帽柜,既增加了主卧的面积,又能使空间感觉更大,储物空间又没减少。主卫的利用率也提高了很多。
这也是考验设计师能力的一部分,无形中把空间的立体感很好的提高了。
客厅再利用线性比较强烈的地砖材质,很好的拉伸了空间,又增加了现代气息这样就把每个空间都很好的利用了,处理的相当完美。

设计师名:孟宪涛
职位级别:首席设计师
从业年限:8年
设计理念:体验生活,品味生活,创造生活,用设计感染生活。
个人案例:苜蓿园大街、华润幸福里、紫晶环球、莱蒙水榭阳光、苏宁滨江壹号等
如果您在南京的房子正准备装修,而且对房屋装修的品质及工艺材料等要求比较高的话,南京红牛装饰公司会是您不错的选择哟!马上咨询在线客服
您也可以直接拨打家装热线15380996031进行电话咨询哦!
家装攻略
- 二手房装修旧房翻新太难了,想要装修不求人?建议收藏!
- 工地巡检:步履不停,以行动兑现品质承诺,严格把控每一环!
- 避坑指南:装修坑多、水深?归根结底五个字:信息不对称
- 工地巡检日:标准&品质是底线,专业&用心是态度!
- 好评如潮:晒一波热乎的客户评价,亲身体验过才最具有发言权!
- 最好的口碑,莫过于装修业主的真实评价!
- 南京红牛装饰:始终如一,以品质说话,以服务铸口碑!
- 再好的文案,都抵不过客户的真实反馈!“三个最”【内附完工实景】
- 工地突击巡检|严把每一处细节,用心守护每一份安心!
- 南京红牛装饰再添荣誉,荣获两面锦旗,双倍肯定,十分满意!
- 南京115㎡现代简约风装修,每一处都将“实用”和“颜值”完美兼容!
- 装修宝典:为何说企业文化是企业灵魂,是企业生存与发展的根本?


