| 案例风格 | 简中风格 | 案例户型 | 平层 | 案例面积 | 176㎡ |
|---|---|---|---|---|---|
| 楼盘名称 | 御江金城 | 设 计 师 | 红牛装饰设计团队 | 案例造价 | 28.3万 |
设计说明
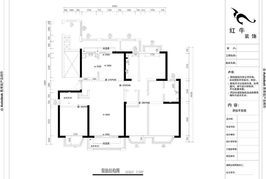
第一次见到业主一家是在2015年5月份的新庄展会;男主人休闲怡情,女主人温柔娴淑,儿子聪慧阳光帅气,名校研究生在读;业主提出这套房子要做简中风格~一个民族传统文化经历千年的风风雨雨,留承于人们的精神文化无法被忽略,中式于中华名族密不可分,有着一种东方神韵的太多古典元素。本案设计中把大胆的把厨房·餐厅和北阳台融入到一个空间相结合,这个样更好的解决了厨房光线和各个空间狭小的问题;客厅中把朝南的一个卧室门做成和电视背景墙相呼应的中式花格隐形门,更加突出客厅电视背景墙的最大化和整体感觉;把靠主卧室的一个房间连带储物间打通做成一个主卧套房的格局,主卧双开门进去以后是一个小的休闲区,把书房地面抬高10公分做成一个地台,更加突出书房空间层次感,主卫生间的门移动个位置,能设计出主卧的一个步入式衣帽间,完善了套房中各种需求的空间需要。整体结果出来还好未违初心,甚合业主之心。



家装攻略
- 南京红牛装饰再添荣誉,荣获两面锦旗,双倍肯定,十分满意!
- 南京115㎡现代简约风装修,每一处都将“实用”和“颜值”完美兼容!
- 装修宝典:为何说企业文化是企业灵魂,是企业生存与发展的根本?
- 南京装修公司红牛装饰工地突击巡检:一厘一毫坚守品质,一心一意守护新家!
- 南京装修避坑指南:装修材料的选择,直接影响您入住新家的早晚?
- 南京比较靠谱的装修公司?南京红牛装饰装修宝典:新房装修好多久可以入住?关键在于……
- 工地巡检:双节同庆,品质同行,严把每一道工序,用心守护梦想家!
- 避坑指南:老房改造二手旧房翻新注意这几点,省心又省钱!
- 690亿元!2025最后一批“国补”资金已下达!还可叠加企补!至高可省40000元!
- 【9月再添荣誉】业主说红牛装饰设计牛!监工牛!预算牛!超满意!
- 九月秋意渐浓,南京红牛装饰工地巡检步履不停,只为兑现品质承诺!
- “金九银十”装修黄金期,南京电视台携手红牛装饰发福利啦~
- 金秋暖心礼|一面锦旗,一句好评,一份信赖!
- 差别真的太大了!南京红牛装饰标准化水电工艺vs非正规/熟人施工队的水电工艺!
- 金九银十装修季|南京红牛装饰工程总监:工地巡检无小事,严苛落实工艺标准!
- 避坑指南:装修行业门槛低,客户陷信任危机!工期延误、不断加钱?!
- 家装宝典:装修不再走弯路,直击高频率痛难点附避坑指南!
- 设计师工地巡检,用脚步丈量细节,护航效果完美落地!
- 2025最后一批装修“国补”要来了?!还可叠加额外优惠?这次能省多少?
- 避坑指南:盘点家装中几大高频痛难点!业主应该如何应对?


