| 案例风格 | 北欧风格 | 案例户型 | 平层 | 案例面积 | 63㎡ |
|---|---|---|---|---|---|
| 楼盘名称 | 富康新村 | 设 计 师 | 朱明琪 | 案例造价 | 定制家|全包11万 |
设计说明
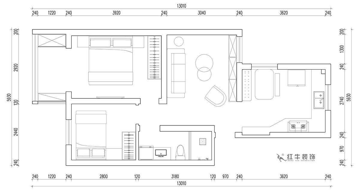
设计户型:63㎡|2室2厅1卫
装修类型:老房翻新
装修方式:全包装修
设计费服务费(元):5000
施工费(元):6万
主材、辅材的材料费总和(元):5万
费用总和(元):11万
主材品牌:L&D瓷砖、李洋地板、李洋木门、开来橱柜、法恩莎卫浴、奥普吊顶
开工日期:2021年09月22日
竣工日期:2022年01月08日
项目经理:王志坚
改造前建筑缺陷:
入户没有储藏空间
厨房与餐厅过小
整体存储空间明显不足
卫生间区域凌乱
方案设计说明:
大道至简,遥望明城墙毗邻月牙湖,使我们不得不思考什么样的装修风格才能不辜负富康新村小区得天独厚的周边环境。
温润的原木,深受广大业主的喜爱,简单的色调与光影营造出家的舒适感,有完美地平衡了理想环境与室内实用,创造性的家,自带归属感。




家装攻略
- 南京红牛装饰再添荣誉,荣获两面锦旗,双倍肯定,十分满意!
- 南京115㎡现代简约风装修,每一处都将“实用”和“颜值”完美兼容!
- 装修宝典:为何说企业文化是企业灵魂,是企业生存与发展的根本?
- 南京装修公司红牛装饰工地突击巡检:一厘一毫坚守品质,一心一意守护新家!
- 南京装修避坑指南:装修材料的选择,直接影响您入住新家的早晚?
- 南京比较靠谱的装修公司?南京红牛装饰装修宝典:新房装修好多久可以入住?关键在于……
- 工地巡检:双节同庆,品质同行,严把每一道工序,用心守护梦想家!
- 避坑指南:老房改造二手旧房翻新注意这几点,省心又省钱!
- 690亿元!2025最后一批“国补”资金已下达!还可叠加企补!至高可省40000元!
- 【9月再添荣誉】业主说红牛装饰设计牛!监工牛!预算牛!超满意!
- 九月秋意渐浓,南京红牛装饰工地巡检步履不停,只为兑现品质承诺!
- “金九银十”装修黄金期,南京电视台携手红牛装饰发福利啦~
- 金秋暖心礼|一面锦旗,一句好评,一份信赖!
- 差别真的太大了!南京红牛装饰标准化水电工艺vs非正规/熟人施工队的水电工艺!
- 金九银十装修季|南京红牛装饰工程总监:工地巡检无小事,严苛落实工艺标准!
- 避坑指南:装修行业门槛低,客户陷信任危机!工期延误、不断加钱?!
- 家装宝典:装修不再走弯路,直击高频率痛难点附避坑指南!
- 设计师工地巡检,用脚步丈量细节,护航效果完美落地!
- 2025最后一批装修“国补”要来了?!还可叠加额外优惠?这次能省多少?
- 避坑指南:盘点家装中几大高频痛难点!业主应该如何应对?


