| 案例风格 | 轻奢风格 | 案例户型 | 平层 | 案例面积 | 120㎡ |
|---|---|---|---|---|---|
| 楼盘名称 | 电建洺悦府 | 设 计 师 | 红牛装饰设计团队 | 案例造价 | |

■ 楼盘:电建洺悦府
■ 面积:120㎡
■ 设计:轻奢风格
■ 出品:红牛装饰
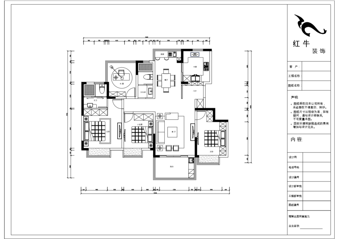
户型分析

本户型南北通透,各空间均有窗,可保证整体的采光和通风,居住舒适度好。主卧属于一个小套间,有一定的结构改造空间。

但同时也有一些小的不足:
1、入户鞋柜处狭小,利用率低,使用感不高。
2、厨房到餐厅之间的动线不佳,建议调整厨房门的位置。
3、北阳台有必要进行规划,把它很好地利用起来。
调整建议

方案一:
进门选用格栅划分出一个单独的门厅,既美观也不影响采光的效果。原先的厨房门改造成一排大气的鞋柜,增加储物空间。
厨房门的位置改造之后,动线合理,厨房和餐厅相呼应。而且厨房内部空间不狭窄,可以放一个冰箱和蒸烤一体柜。
北阳台打通后和餐厅融合,改造成西厨区域。
客厅本身采光较好,开间较大,与阳台也做出了区域上的划分,考虑到阳台面积足够,所以将洗衣机安置在阳台。

方案二:
与方案一不同的是,这里将北阳台打通后,设计了一个岛台,来客人方便洗个水果,泡杯咖啡。
由于次卧的门与客厅电视背景墙在一个平面上,所以最好将次卧的门设计成隐形门。
次卧的面积不足,储物功能不强,建议将衣橱与床头柜融为一体,增加储物功能的同时也不影响美观。
朝北的房间方案被设计成书房,主要是考虑到朝北的房间没有朝南的房间居住舒适,而且它离主卧与儿童房较近,使用较为方便。
效果图欣赏

灰度空间往往会让屋主觉得家里过于冷淡,所以在软装阶段以温暖的丝绒材质作为主体搭配,中和空间的颜色。

复古鱼骨拼搭配墨绿丝绒质感单人椅,搭配简约金属吊灯,营造轻奢的客厅氛围,也塑造了每天的用餐仪式感。

墙面去奢从简,运用大量纤细的石膏线条来进行空间装饰,少量而精致的金属元素很好的呼应了整个空间的轻奢质感。

主卧延续客厅的丝绒与金属搭配风格,又进一步做了减法,在保持轻奢质感的前提下让人感觉更加舒适和沁人心脾,非常适合作为休息空间。

灰色背景墙和台灯的设计打造出高端大气的空间调性,飘窗上用莱茵克蓝软装作为点缀,使整个空间理智睿智且充满生机。

家装攻略
- 南京红牛装饰再添荣誉,荣获两面锦旗,双倍肯定,十分满意!
- 南京115㎡现代简约风装修,每一处都将“实用”和“颜值”完美兼容!
- 装修宝典:为何说企业文化是企业灵魂,是企业生存与发展的根本?
- 南京装修公司红牛装饰工地突击巡检:一厘一毫坚守品质,一心一意守护新家!
- 南京装修避坑指南:装修材料的选择,直接影响您入住新家的早晚?
- 南京比较靠谱的装修公司?南京红牛装饰装修宝典:新房装修好多久可以入住?关键在于……
- 工地巡检:双节同庆,品质同行,严把每一道工序,用心守护梦想家!
- 避坑指南:老房改造二手旧房翻新注意这几点,省心又省钱!
- 690亿元!2025最后一批“国补”资金已下达!还可叠加企补!至高可省40000元!
- 【9月再添荣誉】业主说红牛装饰设计牛!监工牛!预算牛!超满意!
- 九月秋意渐浓,南京红牛装饰工地巡检步履不停,只为兑现品质承诺!
- “金九银十”装修黄金期,南京电视台携手红牛装饰发福利啦~
- 金秋暖心礼|一面锦旗,一句好评,一份信赖!
- 差别真的太大了!南京红牛装饰标准化水电工艺vs非正规/熟人施工队的水电工艺!
- 金九银十装修季|南京红牛装饰工程总监:工地巡检无小事,严苛落实工艺标准!
- 避坑指南:装修行业门槛低,客户陷信任危机!工期延误、不断加钱?!
- 家装宝典:装修不再走弯路,直击高频率痛难点附避坑指南!
- 设计师工地巡检,用脚步丈量细节,护航效果完美落地!
- 2025最后一批装修“国补”要来了?!还可叠加额外优惠?这次能省多少?
- 避坑指南:盘点家装中几大高频痛难点!业主应该如何应对?


