| 案例风格 | 原木风 | 案例户型 | 平层 | 案例面积 | 83㎡ |
|---|---|---|---|---|---|
| 楼盘名称 | 观泓雅苑B区 | 设 计 师 | 朱明琪 | 案例造价 | 定制家|全包11万 |
设计说明
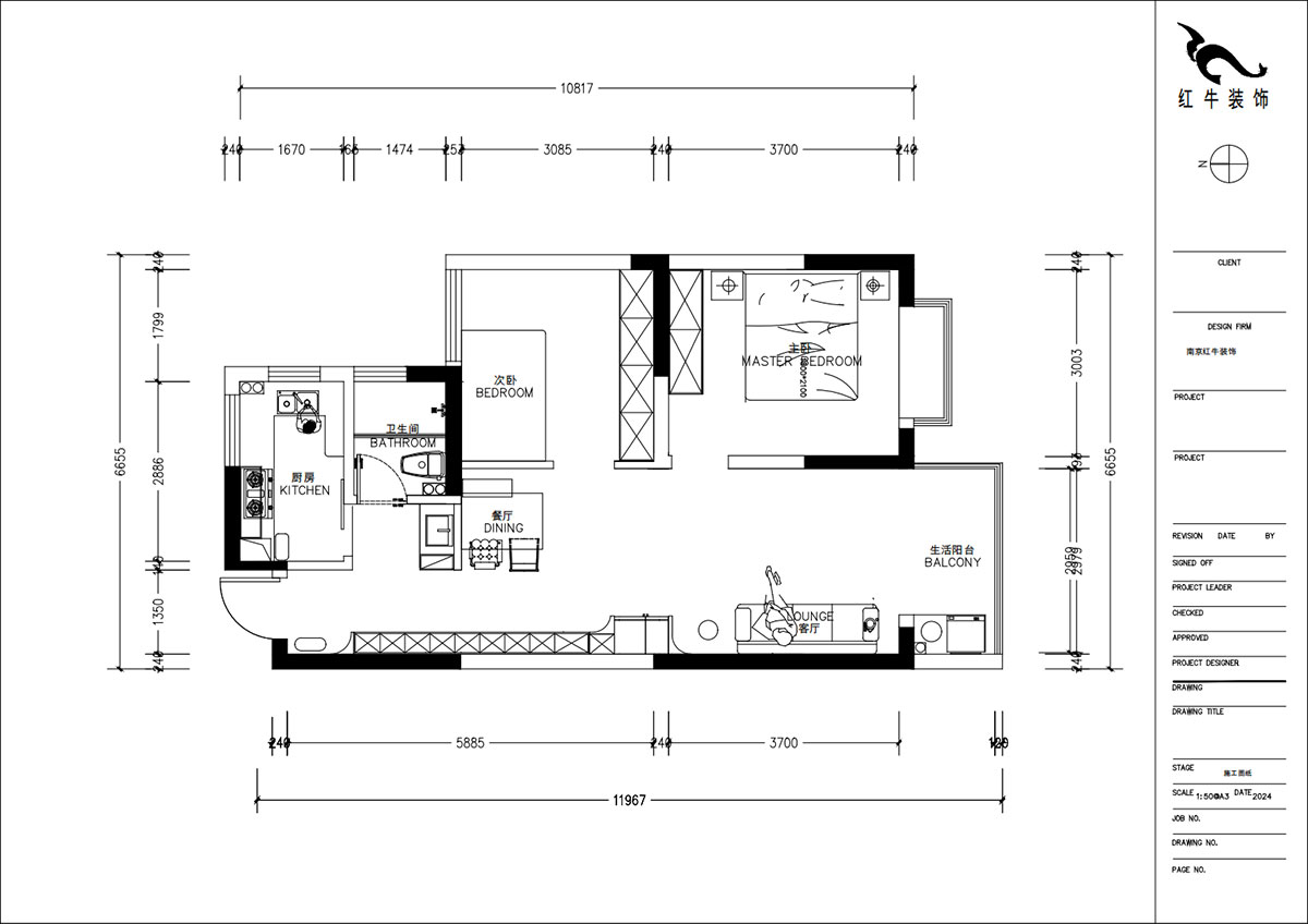
设计户型:83㎡|2室1厅1卫
装修类型:新房装修
装修方式:全包装修
设计费服务费(元):4920
施工费(元):5万
主材、辅材的材料费总和(元):6万
费用总和(元):11万
主材品牌:L&D瓷砖、圣象地板、森尚木门、开来橱柜、法恩莎洁具、奥普吊顶
开工日期:2024年12月01日
竣工日期:2025年04月10日
项目经理:刘建洪
改造前建筑情况:
此户型为2房,原户型客厅朝北,光线很差,没有完整的沙发或者电视墙;
阳台走主卧,晚上使用洗衣机影响业主作息时间;
入户没有储藏空间。
方案设计说明:
整体色调以米白色为主,颜色温润,赏心悦目,在这个沉闷的时代,在原木风的居家空间中,能使业主获得精神上的升华。
客厅说明:客厅空间墙面大面积留白,柔和的色彩,搭配简约的吊顶,也为空间注入了层次与韵味。
餐厅说明:餐边柜扩充了厨房储物的不足,也提升了适合家庭的生活质量。
卧室说明:搭配大面积的白色定制衣柜,床头的光源以不同形势呈现,既满足不同灯光需求,又恰到好处地起到了装饰效果,使整体卧室空间呈现明亮、温柔的舒适状态。
卫生间说明:干区选择整体色彩搭配干净、大方,选择大尺寸米色瓷砖上墙,氛围感温馨感满满。




家装攻略
- 二手房装修旧房翻新太难了,想要装修不求人?建议收藏!
- 工地巡检:步履不停,以行动兑现品质承诺,严格把控每一环!
- 避坑指南:装修坑多、水深?归根结底五个字:信息不对称
- 工地巡检日:标准&品质是底线,专业&用心是态度!
- 好评如潮:晒一波热乎的客户评价,亲身体验过才最具有发言权!
- 最好的口碑,莫过于装修业主的真实评价!
- 南京红牛装饰:始终如一,以品质说话,以服务铸口碑!
- 再好的文案,都抵不过客户的真实反馈!“三个最”【内附完工实景】
- 工地突击巡检|严把每一处细节,用心守护每一份安心!
- 南京红牛装饰再添荣誉,荣获两面锦旗,双倍肯定,十分满意!
- 南京115㎡现代简约风装修,每一处都将“实用”和“颜值”完美兼容!
- 装修宝典:为何说企业文化是企业灵魂,是企业生存与发展的根本?
- 南京装修公司红牛装饰工地突击巡检:一厘一毫坚守品质,一心一意守护新家!
- 南京装修避坑指南:装修材料的选择,直接影响您入住新家的早晚?
- 南京比较靠谱的装修公司?南京红牛装饰装修宝典:新房装修好多久可以入住?关键在于……
- 工地巡检:双节同庆,品质同行,严把每一道工序,用心守护梦想家!
- 避坑指南:老房改造二手旧房翻新注意这几点,省心又省钱!
- 690亿元!2025最后一批“国补”资金已下达!还可叠加企补!至高可省40000元!
- 【9月再添荣誉】业主说红牛装饰设计牛!监工牛!预算牛!超满意!
- 九月秋意渐浓,南京红牛装饰工地巡检步履不停,只为兑现品质承诺!


