| 案例风格 | 现代简约风格 | 案例户型 | 平层 | 案例面积 | 60㎡ |
|---|---|---|---|---|---|
| 楼盘名称 | 游府新村 | 设 计 师 | 顾娟 | 案例造价 | 定制家|全包11万 |
设计说明
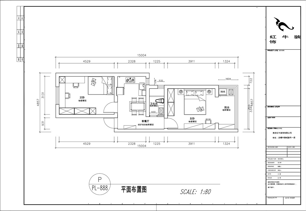
设计户型:60㎡|2室2厅1卫
装修类型:旧房装修
装修方式:全包装修
设计费服务费(元):4600
施工费(元):5万
主材、辅材的材料费总和(元):6万
费用总和(元):11万
主材品牌:L&D瓷砖、圣象地板、金豪森木门、开来橱柜、法恩莎洁具、奥普吊顶
开工日期:2023年03月09日
竣工日期:2023年06月30日
项目经理:赵正平
改造前建筑缺陷:
客餐厅空间很规整,通过细节的处理打造轻松舒适的现代风居家环境。
方案设计说明:
本案以现代风设计感与温馨家的氛围为出发点,总体布局上尽量满足业主生活的需求,主要装修材料以柜体、乳胶漆为主,以暖色的优美含蓄,更体现现代简约之感,创造一个温馨、健康的家庭环境。
在功能方面,餐厅是主人品味的象征,体现了主人品格、地位,既简单又大方。配上主灯光源,整个客厅环境得到提升。餐厅是家居生活的心脏,不仅要美观,更重要的是实用性、整体性。整体灯光以温馨和暖的黄色为基调,在餐边摆放一些饰品,可以增加一下餐厅的情调。




家装攻略
- 南京115㎡现代简约风装修,每一处都将“实用”和“颜值”完美兼容!
- 装修宝典:为何说企业文化是企业灵魂,是企业生存与发展的根本?
- 南京装修公司红牛装饰工地突击巡检:一厘一毫坚守品质,一心一意守护新家!
- 南京装修避坑指南:装修材料的选择,直接影响您入住新家的早晚?
- 南京比较靠谱的装修公司?南京红牛装饰装修宝典:新房装修好多久可以入住?关键在于……
- 工地巡检:双节同庆,品质同行,严把每一道工序,用心守护梦想家!
- 避坑指南:老房改造二手旧房翻新注意这几点,省心又省钱!
- 690亿元!2025最后一批“国补”资金已下达!还可叠加企补!至高可省40000元!
- 【9月再添荣誉】业主说红牛装饰设计牛!监工牛!预算牛!超满意!
- 九月秋意渐浓,南京红牛装饰工地巡检步履不停,只为兑现品质承诺!
- “金九银十”装修黄金期,南京电视台携手红牛装饰发福利啦~
- 金秋暖心礼|一面锦旗,一句好评,一份信赖!
- 差别真的太大了!南京红牛装饰标准化水电工艺vs非正规/熟人施工队的水电工艺!
- 金九银十装修季|南京红牛装饰工程总监:工地巡检无小事,严苛落实工艺标准!
- 避坑指南:装修行业门槛低,客户陷信任危机!工期延误、不断加钱?!
- 家装宝典:装修不再走弯路,直击高频率痛难点附避坑指南!
- 设计师工地巡检,用脚步丈量细节,护航效果完美落地!
- 2025最后一批装修“国补”要来了?!还可叠加额外优惠?这次能省多少?
- 避坑指南:盘点家装中几大高频痛难点!业主应该如何应对?
- 南京红牛装饰:工地突击巡检,狠抓质量,严控细节,品质交付!


