| 案例风格 | 现代简约风格 | 案例户型 | 平层 | 案例面积 | 87㎡ |
|---|---|---|---|---|---|
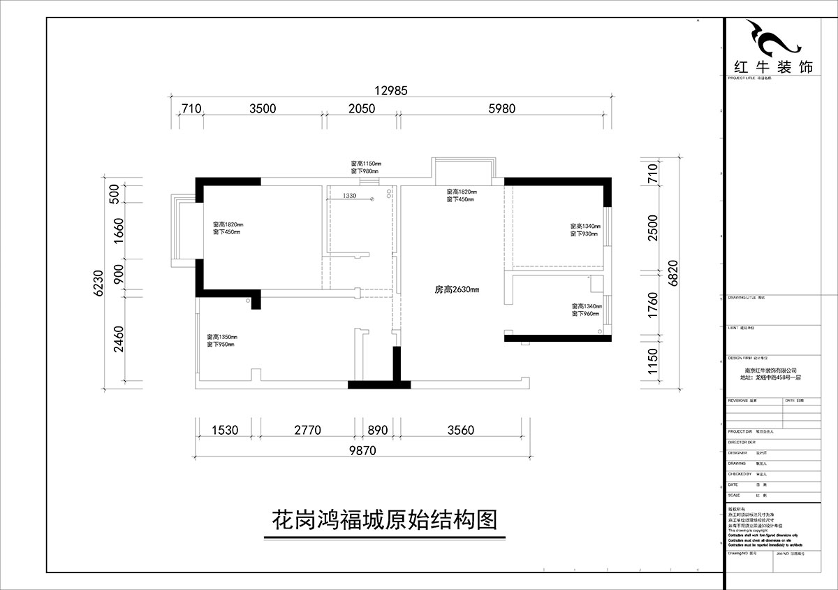
| 楼盘名称 | 花港鸿福城翠城园 | 设 计 师 | 朱彦 | 案例造价 | 定制家|全包9.24万 |
设计说明
设计户型:87㎡|2室2厅1卫
装修类型:新房装修
装修方式:全包装修
设计费服务费(元):6000
施工费(元):4.62万
主材、辅材的材料费总和(元):4.62万
费用总和(元):9.24万
主材品牌:欧神诺瓷砖、李洋地板、奥普吊顶
开工日期:2021年10月09日
竣工日期:2022年01月20日
项目经理:张瑞敏
改造前建筑缺陷:
这套87平米的房子,一家三口居住,在满足居住条件的基础上对房体结构做了局部调整,做到了各个空间的最大化利用,满足了客户功能性的需求。
方案设计说明:
本套方案为简约风格,在满足功能实用的前提下针对客户居住的特性进行设计,以通透性、实用性、装饰性为主要设计思路。以简洁明快的设计风格为主调,简洁和实用是现代风格的基本特点。注重居室的实用性,而且还体现出了现代社会生活的精致与个性,符合现代人的生活品位。




家装攻略
- 最好的口碑,莫过于装修业主的真实评价!
- 南京红牛装饰:始终如一,以品质说话,以服务铸口碑!
- 再好的文案,都抵不过客户的真实反馈!“三个最”【内附完工实景】
- 工地突击巡检|严把每一处细节,用心守护每一份安心!
- 南京红牛装饰再添荣誉,荣获两面锦旗,双倍肯定,十分满意!
- 南京115㎡现代简约风装修,每一处都将“实用”和“颜值”完美兼容!
- 装修宝典:为何说企业文化是企业灵魂,是企业生存与发展的根本?
- 南京装修公司红牛装饰工地突击巡检:一厘一毫坚守品质,一心一意守护新家!
- 南京装修避坑指南:装修材料的选择,直接影响您入住新家的早晚?
- 南京比较靠谱的装修公司?南京红牛装饰装修宝典:新房装修好多久可以入住?关键在于……
- 工地巡检:双节同庆,品质同行,严把每一道工序,用心守护梦想家!
- 避坑指南:老房改造二手旧房翻新注意这几点,省心又省钱!
- 690亿元!2025最后一批“国补”资金已下达!还可叠加企补!至高可省40000元!
- 【9月再添荣誉】业主说红牛装饰设计牛!监工牛!预算牛!超满意!
- 九月秋意渐浓,南京红牛装饰工地巡检步履不停,只为兑现品质承诺!
- “金九银十”装修黄金期,南京电视台携手红牛装饰发福利啦~
- 金秋暖心礼|一面锦旗,一句好评,一份信赖!
- 差别真的太大了!南京红牛装饰标准化水电工艺vs非正规/熟人施工队的水电工艺!
- 金九银十装修季|南京红牛装饰工程总监:工地巡检无小事,严苛落实工艺标准!
- 避坑指南:装修行业门槛低,客户陷信任危机!工期延误、不断加钱?!


