| 案例风格 | 美式风格 | 案例户型 | 别墅 | 案例面积 | 280㎡ |
|---|---|---|---|---|---|
| 楼盘名称 | 卧龙湖百合花园 | 设 计 师 | 红牛装饰设计团队 | 案例造价 | 50万 |
设计说明
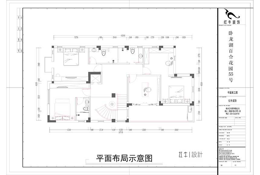
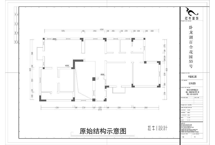
本案风格定义美式风格,由于原始户型的不合理和业主个性化的需求,整个方案空间做了一个很大的变更调整,让每个空间更加连贯,舒适,在每个独有的空间,功能的分配更加合理。
整个设计主要以木质元素作为整个空间为主导,通过材质的造型和线条的变换,来体现风格,墙面没有做过多的修饰,唯独在吊顶上做了很多的修饰,每个区域都有不一样的吊顶设计,但是又相互的呼应。家具选择的是木质加布艺的材质作为家具的主体,但是在颜色方面,局部的地方以冷色来做为跳色,这样冷暖对比,前后呼应,家里的层次感会更好。




家装攻略
- 南京红牛装饰:始终如一,以品质说话,以服务铸口碑!
- 再好的文案,都抵不过客户的真实反馈!“三个最”【内附完工实景】
- 工地突击巡检|严把每一处细节,用心守护每一份安心!
- 南京红牛装饰再添荣誉,荣获两面锦旗,双倍肯定,十分满意!
- 南京115㎡现代简约风装修,每一处都将“实用”和“颜值”完美兼容!
- 装修宝典:为何说企业文化是企业灵魂,是企业生存与发展的根本?
- 南京装修公司红牛装饰工地突击巡检:一厘一毫坚守品质,一心一意守护新家!
- 南京装修避坑指南:装修材料的选择,直接影响您入住新家的早晚?
- 南京比较靠谱的装修公司?南京红牛装饰装修宝典:新房装修好多久可以入住?关键在于……
- 工地巡检:双节同庆,品质同行,严把每一道工序,用心守护梦想家!
- 避坑指南:老房改造二手旧房翻新注意这几点,省心又省钱!
- 690亿元!2025最后一批“国补”资金已下达!还可叠加企补!至高可省40000元!
- 【9月再添荣誉】业主说红牛装饰设计牛!监工牛!预算牛!超满意!
- 九月秋意渐浓,南京红牛装饰工地巡检步履不停,只为兑现品质承诺!
- “金九银十”装修黄金期,南京电视台携手红牛装饰发福利啦~
- 金秋暖心礼|一面锦旗,一句好评,一份信赖!
- 差别真的太大了!南京红牛装饰标准化水电工艺vs非正规/熟人施工队的水电工艺!
- 金九银十装修季|南京红牛装饰工程总监:工地巡检无小事,严苛落实工艺标准!
- 避坑指南:装修行业门槛低,客户陷信任危机!工期延误、不断加钱?!
- 家装宝典:装修不再走弯路,直击高频率痛难点附避坑指南!


