| 案例风格 | 北欧风格 | 案例户型 | 平层 | 案例面积 | 140㎡ |
|---|---|---|---|---|---|
| 楼盘名称 | 中垠紫金官邸 | 设 计 师 | 红牛装饰设计团队 | 案例造价 | |

■ 楼盘:中垠紫金官邸
■ 面积:140㎡
■ 设计:北欧风格
■ 出品:红牛装饰
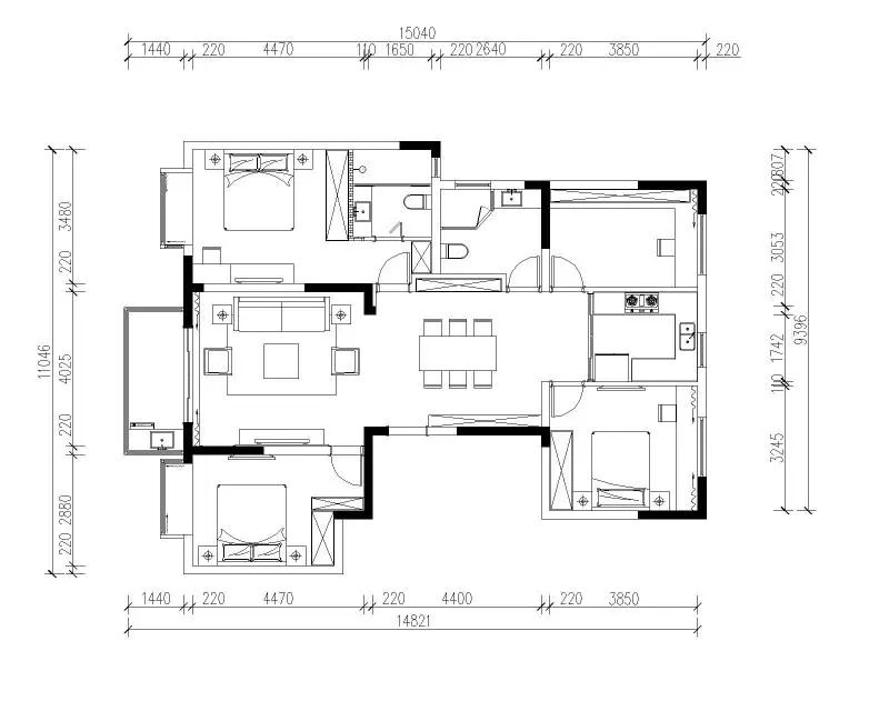
户型分析

本户型四房两厅两卫,整体空间比较完整,没有过多的浪费空间。
但是有些小缺点可以改善:主卫宽度略小,次卫过大而且有缺角,厨房相对偏小,餐厅采光较差。
调整建议

方案一:
根据原有户型布局了整体空间,朝南的房间安排了主卧和次卧,朝北的房间可以做为书房和客卧。
这个方案没有过多调整空间尺寸,从空间上来说是可以的,但还是有所欠缺。
比如北卧室出门口的鞋柜相对而言比较碍事;餐厅偏小,而且过道空间不足;次卫台盆太长,没有太大的利用价值。
但是在业主不想大面积修改墙体的情况下,只能这样优化空间使用。

方案二:
把主卧和次卫往后推了一个尺寸,并修改了次卫的开门位置。
这样的话,餐厅空间更大了,两侧的通行位置更宽敞。次卫也比较方正,没有任何浪费。
厨房的墙体向书房空间偏移,压缩书房空间,增加厨房空间,让厨房台面更加宽敞,即使两个人同时使用也不会觉得拥挤。
将厨房的门设置成玻璃移门,就解决餐厅的自然采光问题。
次卧的门修改朝向之后,解决了出门就是鞋柜的尴尬,鞋柜的收纳空间也变大了。
效果图欣赏
本案例是北欧风格,通过大面积的蓝色突出重点,通过木色和白色的家具让家里更加温馨舒适。

吊顶采用了整体的做法,让顶部空间更加宽敞,不显压抑。多叠级的做法,空间层次更加强烈。沙发背景处采用了反灯槽的做法,背景的光影效果更加鲜明。地面选用小尺寸地板,使用鱼骨拼工艺,显出一丝高级感。

电视背景墙采取了一体式的做法。左侧竖纹造型,完美的把卧室门给隐藏其中。右侧的装饰展架,让家里的小饰品和玩具有了自己的空间。中间的柜体,能够实现多功能收纳,让家里不再凌乱。

灰色调背景墙,布艺的床头简洁大方。床头柜和衣柜非常协调,两侧的床头吊灯充分体现的了时尚感,同时也让床头柜的空间释放出来。

次卧室选择了白色基调,在相对小的空间里,视觉上显得更加宽敞。圆润的床体和茶几,能够避免磕碰时受伤。

家装攻略
- 南京红牛装饰:始终如一,以品质说话,以服务铸口碑!
- 再好的文案,都抵不过客户的真实反馈!“三个最”【内附完工实景】
- 工地突击巡检|严把每一处细节,用心守护每一份安心!
- 南京红牛装饰再添荣誉,荣获两面锦旗,双倍肯定,十分满意!
- 南京115㎡现代简约风装修,每一处都将“实用”和“颜值”完美兼容!
- 装修宝典:为何说企业文化是企业灵魂,是企业生存与发展的根本?
- 南京装修公司红牛装饰工地突击巡检:一厘一毫坚守品质,一心一意守护新家!
- 南京装修避坑指南:装修材料的选择,直接影响您入住新家的早晚?
- 南京比较靠谱的装修公司?南京红牛装饰装修宝典:新房装修好多久可以入住?关键在于……
- 工地巡检:双节同庆,品质同行,严把每一道工序,用心守护梦想家!
- 避坑指南:老房改造二手旧房翻新注意这几点,省心又省钱!
- 690亿元!2025最后一批“国补”资金已下达!还可叠加企补!至高可省40000元!
- 【9月再添荣誉】业主说红牛装饰设计牛!监工牛!预算牛!超满意!
- 九月秋意渐浓,南京红牛装饰工地巡检步履不停,只为兑现品质承诺!
- “金九银十”装修黄金期,南京电视台携手红牛装饰发福利啦~
- 金秋暖心礼|一面锦旗,一句好评,一份信赖!
- 差别真的太大了!南京红牛装饰标准化水电工艺vs非正规/熟人施工队的水电工艺!
- 金九银十装修季|南京红牛装饰工程总监:工地巡检无小事,严苛落实工艺标准!
- 避坑指南:装修行业门槛低,客户陷信任危机!工期延误、不断加钱?!
- 家装宝典:装修不再走弯路,直击高频率痛难点附避坑指南!


