| 案例风格 | 现代简约风格 | 案例户型 | 平层 | 案例面积 | 100㎡ |
|---|---|---|---|---|---|
| 楼盘名称 | 三牌楼大街24号 | 设 计 师 | 孟宪涛 | 案例造价 | 定制家|全包10万 |
设计说明
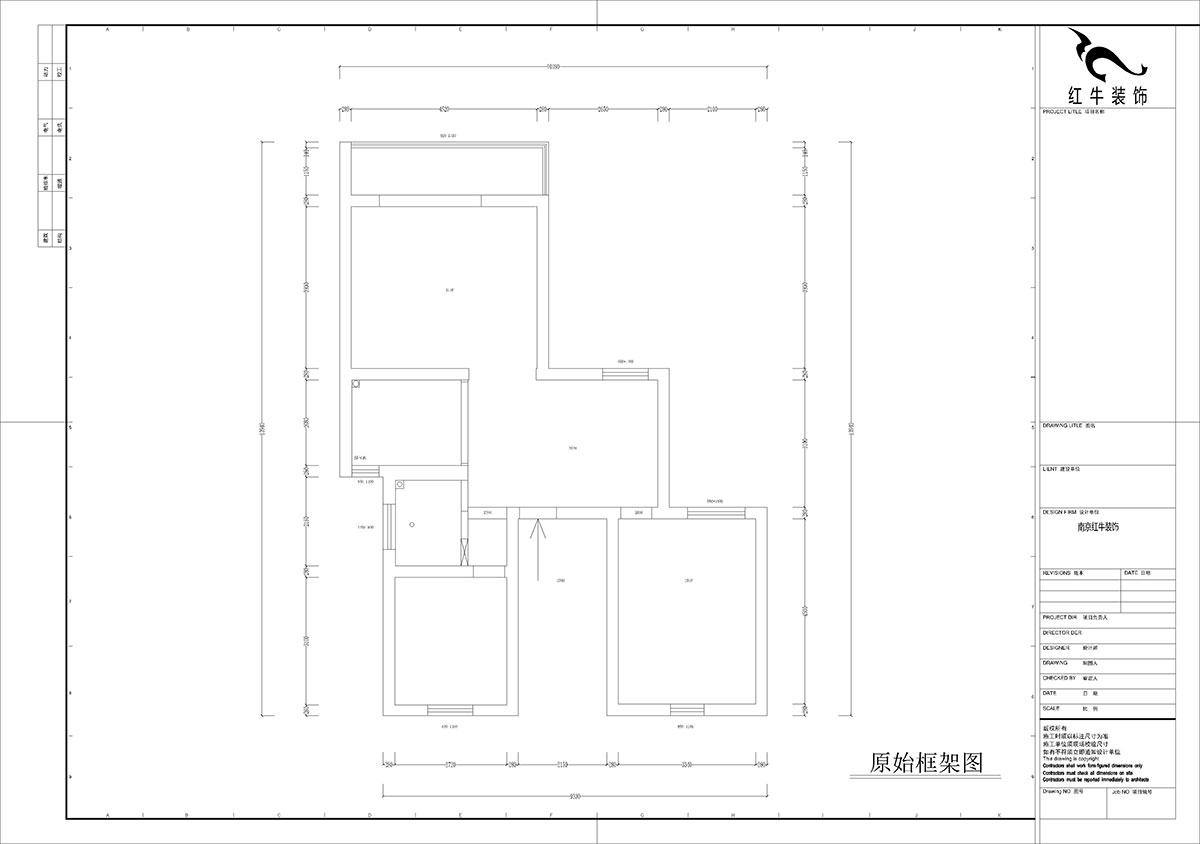
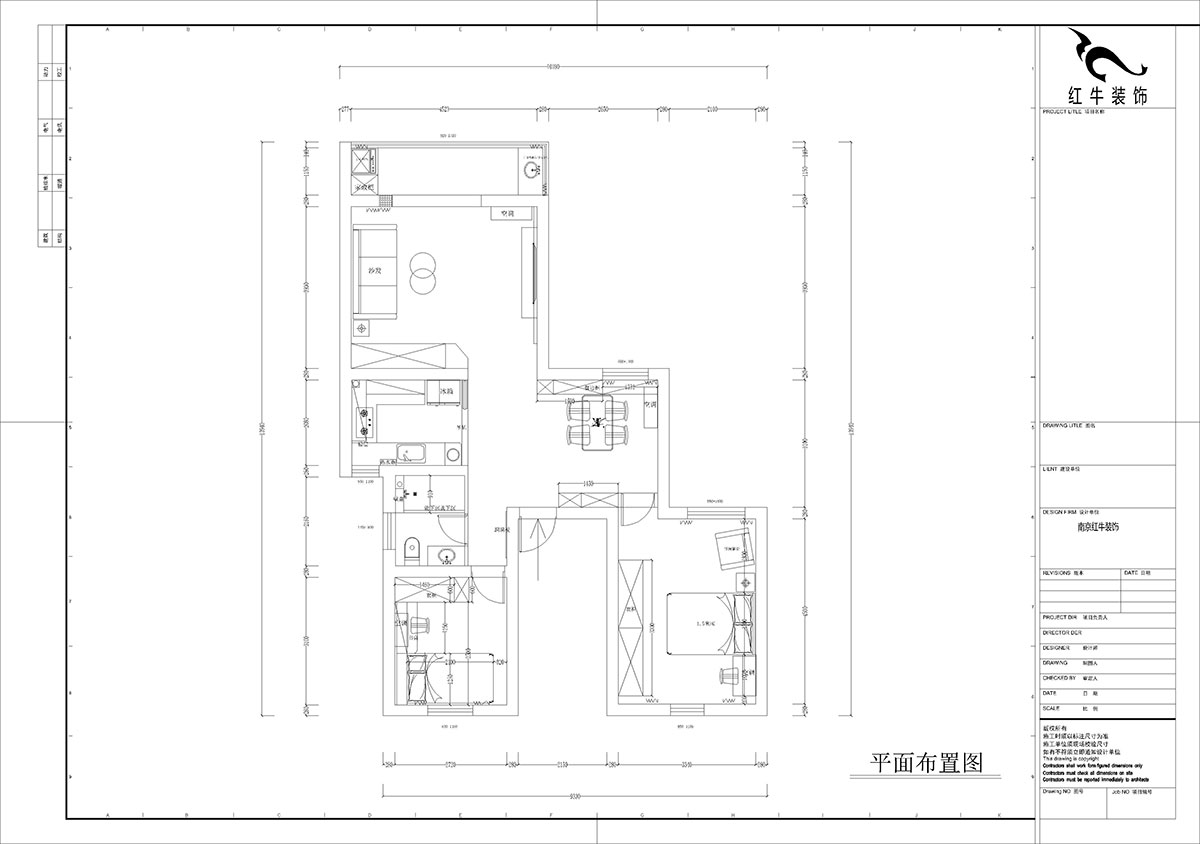
设计户型:100㎡|2室2厅1卫1厨1阳台
装修类型:老房装修
装修方式:全包装修
设计费服务费(元):3000
施工费(元):5万
主材、辅材的材料费总和(元):5万
费用总和(元):10万
主材品牌:L&D瓷砖、开来木门、欧派橱柜、法恩莎洁具、奥普吊顶
开工日期:2026年03月25日
竣工日期:2026年07月31日
项目经理:蒋雪勇




家装攻略
- 家装避坑指南:水路改造怕被坑?盯住这“几个核心”工艺!
- 家装避坑指南:水电阶段最核心、最容易踩坑的几个工艺环节
- 避坑指南:还在为选装修公司发愁?盯紧这两点就够了
- 选装修公司,不是选最便宜的那家,而是要选一个最值得信赖的
- 新春开门红:1888元装修红包限时派发,别再错过啦!
- 南京红牛装饰工程有限公司春节放假通知
- 锦旗荣誉:“设计专业,施工一流,一丝不苟,严格监督”
- 二手房装修旧房翻新太难了,想要装修不求人?建议收藏!
- 工地巡检:步履不停,以行动兑现品质承诺,严格把控每一环!
- 避坑指南:装修坑多、水深?归根结底五个字:信息不对称
- 工地巡检日:标准&品质是底线,专业&用心是态度!
- 好评如潮:晒一波热乎的客户评价,亲身体验过才最具有发言权!
- 最好的口碑,莫过于装修业主的真实评价!
- 南京红牛装饰:始终如一,以品质说话,以服务铸口碑!
- 再好的文案,都抵不过客户的真实反馈!“三个最”【内附完工实景】
- 工地突击巡检|严把每一处细节,用心守护每一份安心!
- 南京红牛装饰再添荣誉,荣获两面锦旗,双倍肯定,十分满意!
- 南京115㎡现代简约风装修,每一处都将“实用”和“颜值”完美兼容!
- 装修宝典:为何说企业文化是企业灵魂,是企业生存与发展的根本?
- 南京装修公司红牛装饰工地突击巡检:一厘一毫坚守品质,一心一意守护新家!


