| 案例风格 | 现代简约风格 | 案例户型 | 平层 | 案例面积 | 78㎡ |
|---|---|---|---|---|---|
| 楼盘名称 | 宁康苑 | 设 计 师 | 南京红牛装饰 | 案例造价 | 定制家|全包11.17万 |
设计说明
设计户型:78㎡|3室1厅1厨1卫
装修类型:老房装修
装修方式:全包装修
设计费服务费(元):4000
施工费(元):5.17万
主材、辅材的材料费总和(元):6万
费用总和(元):11.17万
主材品牌:L&D瓷砖、圣象地板、李洋木门、欧派橱柜、奥普吊顶
开工日期:2023年10月20日
竣工日期:2024年01月21日
项目经理:王志坚
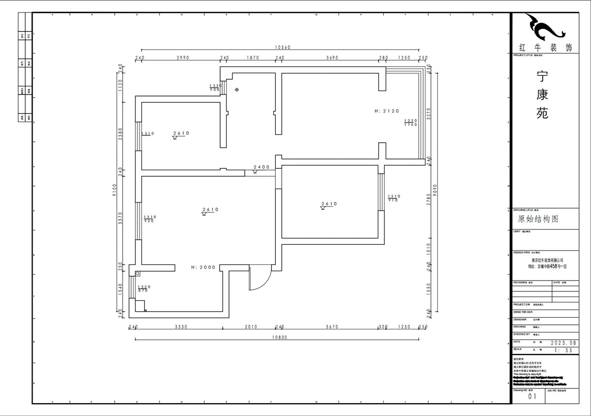
改造前建筑情况:
1、家里储藏空间不足;
2、过道比较占有空间,导致空间零碎;
3、卫生间门对着大门。
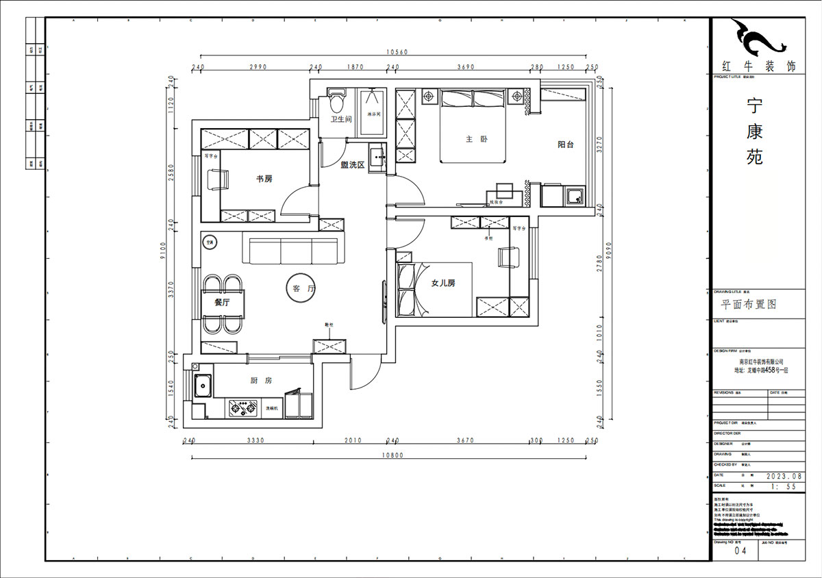
方案设计说明:
本案设计在跟客户沟通后整体风格定位为现代风格。
本户型是3室1厅1厨1卫的户型,业主要求厨房利用更合理点,家里储藏空间多点,卫生间能正常满足家庭需求,还不拥挤,需要个大台盆,房间做的开阔,动态留线合理。喜欢简单,家里要看着清爽,在美观的前提下,储藏空间做得多点。
本案设计墙面用的是米白色乳胶漆,家具柜体以白色为主,配上木色柜体,让空间更加温馨,尽量少吊顶,吊顶层高做高点,灯光设计讲究空间的柔和,着重点光源的点缀,让家更加明亮温馨。





家装攻略
- 南京红牛装饰:始终如一,以品质说话,以服务铸口碑!
- 再好的文案,都抵不过客户的真实反馈!“三个最”【内附完工实景】
- 工地突击巡检|严把每一处细节,用心守护每一份安心!
- 南京红牛装饰再添荣誉,荣获两面锦旗,双倍肯定,十分满意!
- 南京115㎡现代简约风装修,每一处都将“实用”和“颜值”完美兼容!
- 装修宝典:为何说企业文化是企业灵魂,是企业生存与发展的根本?
- 南京装修公司红牛装饰工地突击巡检:一厘一毫坚守品质,一心一意守护新家!
- 南京装修避坑指南:装修材料的选择,直接影响您入住新家的早晚?
- 南京比较靠谱的装修公司?南京红牛装饰装修宝典:新房装修好多久可以入住?关键在于……
- 工地巡检:双节同庆,品质同行,严把每一道工序,用心守护梦想家!
- 避坑指南:老房改造二手旧房翻新注意这几点,省心又省钱!
- 690亿元!2025最后一批“国补”资金已下达!还可叠加企补!至高可省40000元!
- 【9月再添荣誉】业主说红牛装饰设计牛!监工牛!预算牛!超满意!
- 九月秋意渐浓,南京红牛装饰工地巡检步履不停,只为兑现品质承诺!
- “金九银十”装修黄金期,南京电视台携手红牛装饰发福利啦~
- 金秋暖心礼|一面锦旗,一句好评,一份信赖!
- 差别真的太大了!南京红牛装饰标准化水电工艺vs非正规/熟人施工队的水电工艺!
- 金九银十装修季|南京红牛装饰工程总监:工地巡检无小事,严苛落实工艺标准!
- 避坑指南:装修行业门槛低,客户陷信任危机!工期延误、不断加钱?!
- 家装宝典:装修不再走弯路,直击高频率痛难点附避坑指南!


